User manual

8
NOTE: It is good practice to :
• Fit an Earth Leakage Circuit Breaker to your
house wiring.
• Wire your appliance to the latest IEE regulations.
THINGS TO NOTE
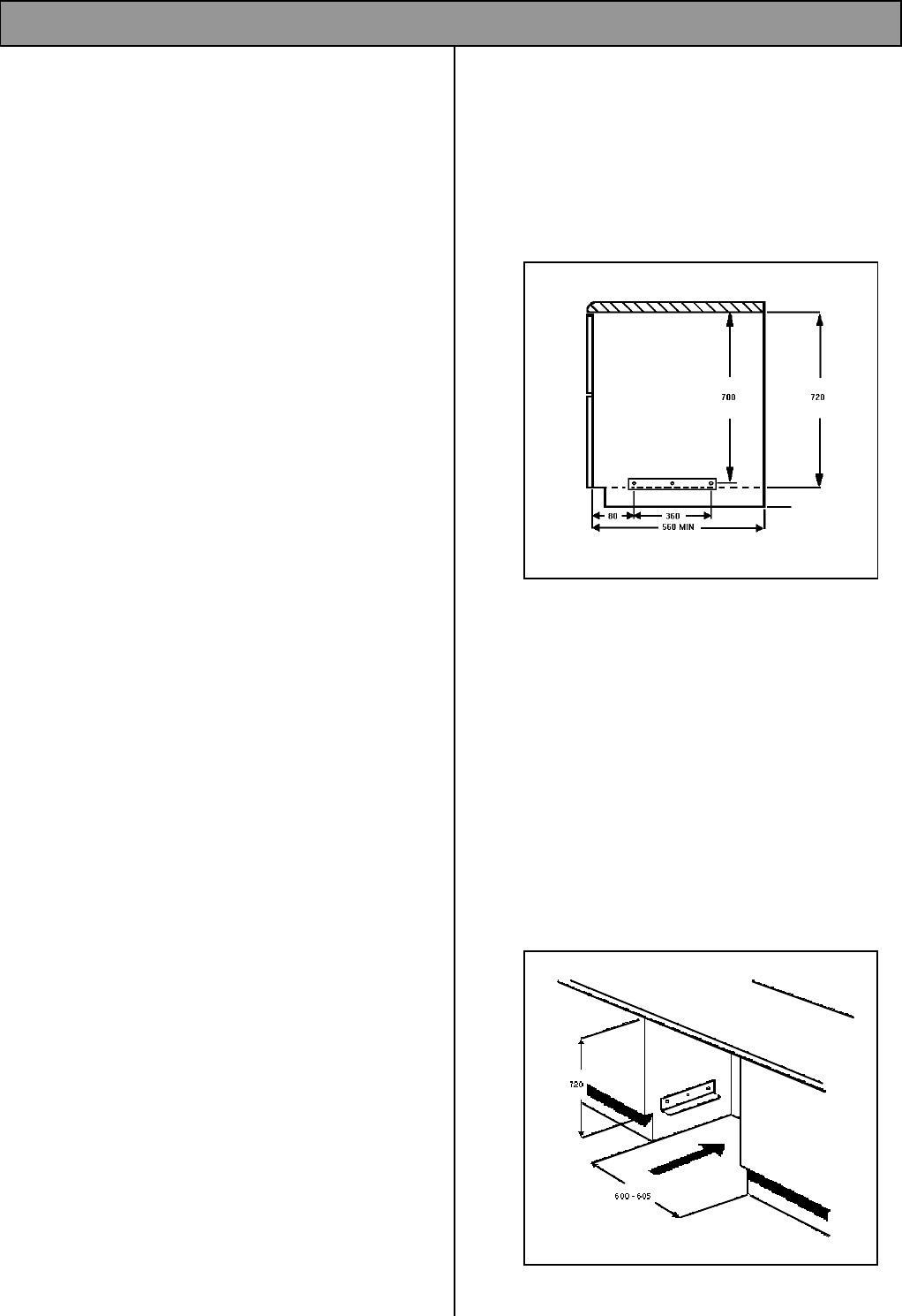
• This appliance is designed to be fitted between
cabinets with the recommended dimensions as
shown in Fig. 3 & 4.
• If there is an existing housing unit it must be
removed.
• The dimensions given provide adequate air
circulation around the unit within the cabinet,
ensuring compliance with BS EN60-335.
• Enquiries regarding the installation of the cooker
point, if required, should be made to your
Regional Electricity Company to ensure
compliance with their regulations.
• This appliance must not be installed on a wooden
base board.
• The cooker point should be within 2m of the
appliance to make it accessible to switch off the
appliance in case of an emergency.
• To protect the hands, wear gloves when lifting
the oven into its housing.
NOTE: HOUSE CIRCUIT
Earth leakage / continuity tests must be carried out
before the appliance is connected to the mains
supply and re-checked after fitting.
INSTALLATION INSTRUCTIONS
Fig. 3
Fig. 4