Use and Care Manual

9
6-560.8
Section C – Horizontal, Category III Vent System Installation
C1. This section applies to horizontally vented Category III
vent systems and is in addition to “Section A – General
Instructions – All Units”.
C2. Horizontal vent systems terminate horizontally (sideways).
C3. Seal all seams and joints of un-gasketed single wall pipe with
metal tape or Silastic suitable for temperatures up to 400°F.
Wrap the tape 2 full turns around the vent pipe. For single
wall vent systems, 1 continuous section of double wall vent
pipe may be used within the vent system to pass through the
wall to a listed vent cap.
Under no circumstances should 2
sections of double wall vent pipe be joined together within 1
horizontal vent system due to the inability to verify complete
seal of inner pipes. Category III vent systems listed by a
nationally recognized agency and matching the diameters
specified may be used. Different brands of vent pipe
materials may not be intermixed.
Refer to instruction A10 in
“Section A – General Instructions – All Units” for attaching
double wall pipe to single wall pipe.
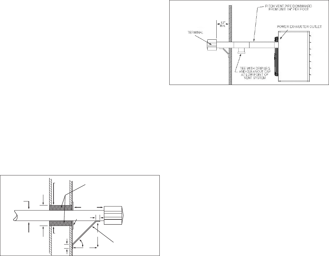
C4. All horizontal Category III vents must be terminated with a
listed vent cap. The cap must terminate a minimum distance
of 12" beyond the exterior wall surface as shown in Figure
9.2. The vent must be supported as shown in Figure 9.1.
Precautions must be taken to prevent degradation of building
materials by flue products.
C5. When condensation may be a problem, the vent system shall
not terminate over public walkways or over an area where
condensate or vapor could create a nuisance or hazard or
could be detrimental to the operation of regulators, relief
openings, or other equipment.
C6. The venting system must be exclusive to a single unit, and
no other unit is allowed to be vented into it.
C7. When vented horizontally, maintain a 1/4" per foot rise away
from the heater and place a drip leg with clean out near the
unit as shown in Figure 9.2. Where local authorities have
jurisdiction, a 1/4" per foot downward slope is acceptable
with a drip leg and clean out near the exit of the vent as
shown in Figure 9.2, or allow the condensate to drip out the
end.
INSTALLATION - VENTING
METAL
SLEEVE
FIBER GLASS
INSULATION
MIN. 2"
2" MIN.
VENT TERMINATION
SUPPORT BRACKET
(where required)
(Make from 1" x 1" steel angle)
9"
9"
12" MIN
45
1"
METAL
SLEEVE
2" MIN.
VENT PIPE
DIAMETER
METAL FACE
PLATE
1"
Figure 9.2 - Horizontal Venting
Figure 9.1 - Exhaust Vent Construction Through Combustible
Walls and Support Bracket
C8. For a vent termination located under an eave, the distance
of the overhang must not exceed 24". The clearance to
combustibles above the exterior vent must be maintained
at a minimum of 12". Consult the National Fuel Gas Code
for additional requirements for eaves that have ventilation
openings.
C9. Once venting is complete, proceed to the section titled
“Installation – Gas Connections”.