Use and Care Manual

8
6-560.8
Section B – Vertical Vent System Installation
B1. This section applies to vertically vented Category I
vent systems and is in addition to “Section A – General
Instructions – All Units”.
B2. Vertical vent systems terminate vertically, and must be
sized in accordance with the National Fuel Gas Code, ANSI
Z223.1 (NFPA 54) - latest edition.
B3. The horizontal portion of the vent run cannot exceed 75%
of the vertical rise (Example: If the vent height is 10', the
horizontal portion of the vent system cannot exceed
7.5').
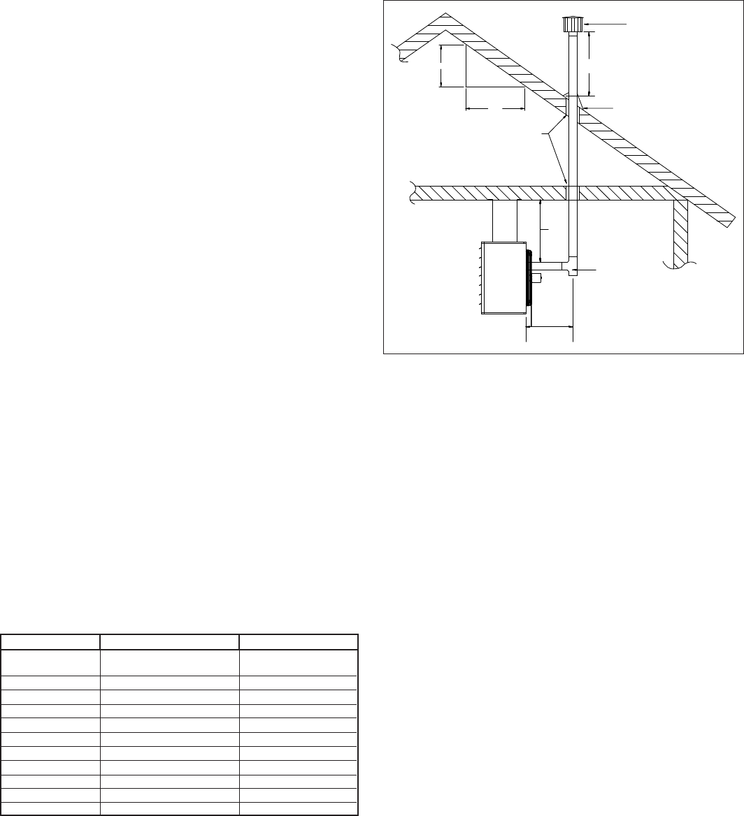
B4. It is recommended to install a tee with drip leg and clean out
cap as shown in Figure 8.1.
B5. The vent terminates a minimum of 5' above the vent
connector on the unit.
B6. All vertically vented heaters that are Category I must be
connected to a vent complying with a recognized standard,
with a material acceptable to the authority having jurisdiction.
Venting into a masonry chimney is not permitted. Refer to
the National Fuel Gas Code, ANSI Z223.1 (NFPA 54) - latest
edition for instructions on common venting.
B7. Use a listed vent terminal to reduce down drafts and
moisture in the vent.
B8. Double wall vent pipe is recommended, although single wall
can be used if the requirements of the National Fuel Gas
Code are followed.
B9. Vertical vents must terminate a minimum horizontal and
vertical distance from roof lines and adjacent walls or
obstructions. These minimum distances are outlined as
follows (based on National Fuel Gas Code requirements for
vents with diameters less than 12"):
•Fordouble wall vent pipe and 8' or greater horizontal distance
to any vertical wall or similar obstruction, the
vent must terminate above the roof in accordance with
Figure 8.1 and Table 8.1.
•Fordouble wall vent pipe and less than 8' horizontal distance
to any vertical wall or similar obstruction, the vent must
terminate at least 2' above the highest point where it
passes through a roof of a building and at least 2' higher
than any portion of a building within a horizontal distance of
10' (see Figure 8.1).
•Forsingle wall vent pipe and 10' or greater horizontal
distance to any portion of a building, the vent must
terminate at least 2' above the highest point where it
passes through a roof of a building and at least 2' higher
than any portion of a building within a horizontal distance
of 10'.
•Forsingle wall vent pipe and less than 10' horizontal
distance to any portion of a building, the vent must
terminate at least 2' higher than any portion of that building.
Figure 8.1 - Vertical Category I Vent System
INSTALLATION - VENTING
BACK VIEW
ROOF PITCH IS:
X / 12
TEE WITH DRIP LEG
AND CLEANOUT CAP
(SLOPE 1/4" PER
FOOT DOWNWARD
TOWARD DRIP LEG)
ROOF FLASHING
USE LISTED THIMBLE
THROUGH ROOF AND
CEILING
EXHAUST
12
X
LISTED TERMINAL
"H" MIN*
12" MIN
RECOMMENDED
4" MIN
Table 8.1 - Minimum Height from Roof to Lowest Discharge
Opening
Rise X (in) Roof Pitch Min Height H (ft) ➀
0-6 Flat to 6/12 1.00
6-7 6/12 to 7/12 1.25
7-8 7/12 to 8/12 1.50
8-9 8/12 to 9/12 2.00
9-10 9/12 to 10/12 2.50
10-11 10/12 to 11/12 3.25
11-12 11/12 to 12/12 4.00
12-14 12/12 to 14/12 5.00
14-16 14/12 to 16/12 6.00
16-18 16/12 to 18/12 7.00
18-20 18/12 to 20/12 7.50
20-21 20/12 to 21/12 8.00
➀ Size according to expected snow depth.