Specification

21
6-189.9
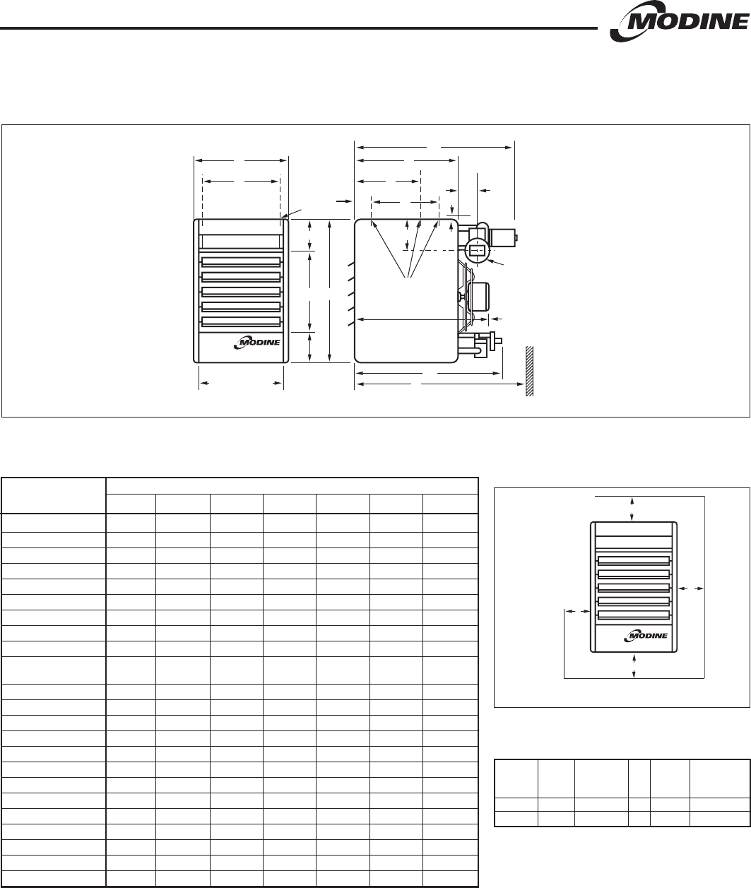
DIMENSIONAL DATA - MODEL PDP
Propeller Units - Model PDP
Dimension Model Number
Symbol PDP 150 PDP 175 PDP 200 PDP 250 PDP 300 PDP 350 PDP 400
A 21 23-1/2 25-5/8 25-5/8 28-5/8 33-5/8 40
B 35-1/4 35-1/4 40-1/4 40-1/4 40-1/4 40-1/4 40-1/4
C 22 22 25 25 25 25 25
D 18-9/16 21-1/16 23-3/16 23-3/16 26-3/16 31-3/16 37-1/2
E 20 20 24 24 24 24 24
F 12 12 13-1/2 13-1/2 14
G 6-9/16 6-9/16 7-1/2 7-1/2 7-1/2 7-1/2 7-1/2
H 17-3/8 19-7/8 22 22 25 30 36-3/8
J 5 5 5 6 6 6 6
K (Mounting
Holes)
L
35-13/16 35-9/16 40-3/4 40-3/4 40-3/4 40-3/4 44-3/16
M 29-13/16 29-9/16 34-3/4 34-3/4 34-3/4 34-11/16 38-3/16
W – – – – 5 5
X 16 16
AA 8 8 9 9 9 9 9
BB 7-1/4 7-1/4 7-1/4 7-1/4 7-1/4 7-1/4 7-1/4
CC – – – – – –
DD 2-3/4 2-3/4 3-3/8 3-3/8 3-3/8 3-3/8 6-13/16
EE 30-1/2 30-1/2 32-7/8 32-7/8 32-7/8 32-7/8 32-7/8
LL 31-1/8 31-1/8 34-7/8 34-7/8 36-1/4 35-1/2 40-1/2
Gas Connections
1/2 1/2 1/2 1/2 1/2 3/4 3/4
Fan Diameter 16 18 20 20 22 22 24
Approx. Weight 168 175 239 239 269 338 418
Do not use propeller units with duct work.
For some models, this is the dimension of the vent transition outlet supplied.
PDP 150 through PDP 300 — 2 holes (and the level hanging adjustment feature). PDP 350 through
PDP 400 — 4 holes. (Listed is the hole diameter and threads per inch to accept threaded rod).
Dimension equals overall plus 6".
For natural gas; may vary depending on control availability.
Table 21.1 - Dimensions (inches) - PDP
Figure 21.2 - Combustible Material and
Service Clearances
Figure 21.1 - Dimensional Drawings
A
H
D (OPENING)
BB
E
AA
B
K
W
X
F
C
M
EE
LL
CC
G
DD
J
L
(MIN. DISTANCE TO WALL)
K
3/8-16 3/8-16 3/8-16 3/8-16 3/8-16 3/8-16 3/8-16
A
D
B
C
Access
Side
Table 21.2 - Combustible Material
Clearances
Provide sufficient room around the heater to allow for
proper combustion and operation of fan. Free area
around the heater must not be less than 1-1/2 times
the discharge area of the unit.
Access Non-Access Top of Power
Model Side Side Top Bottom Exhauster
Size (A) (B) (C) (D) (Not shown)
150-175 1 1 4 12 2
200-400 1 1 5 12 3
342844 6-189.9.indd 21 11/11/14 9:59 PM