Specification

4
6-189.9
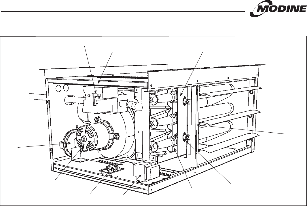
DESIGN FEATURES - MODELS HD/HDB
➀ Power Exhauster (STD)
All HD series (low profile) unit heaters are supplied with a
round vent pipe connection.
➁ Pressure Switch (STD)
An automatic reset vent pressure switch is supplied on
all HD series (low profile)unit heaters and is designed to
prevent operation of the main burner in the event there
is restricted venting of flue products. This restriction may
occur due to an improper vent diameter, long vent runs,
un-approved vent terminal, high winds, high negative
pressure within space, etc. After the cause of the
restriction has been corrected, the pressure switch will
reset automatically. See the trouble shooting section of the
installation and service manual for more information.
➂ Integrated Direct Spark Control Board (STD)
The integrated direct spark ignition control combines all
furnace control functions. The integrated board provides
digital control of the air mover, inducer, ignition, gas valve
and flame sense as well as monitoring the safety circuit at
all times. The board includes LED diagnostics for trouble
shooting and a fused power supply.
➃ Gas Valve - (See Table 14.2)
a) Single Stage Gas Valve - (STD)
The main gas valve is factory installed on the unit
heater gas train. The main gas valve provides regulator,
main gas, and manual shutoff functions. The valve is
redundant and provides 100% shut off.
b) Two Stage Gas Valve - (OPT)
The two-stage gas valve is factory installed on the unit
heater gas train. The two stage gas valve provides the
regulator, main gas (100% and 50% fire), and manual
shutoff functions. The valve is redundant and provides
100% shut off.
➄ Control Step Down Transformer - (STD)
The control step down transformer is located in the
electrical junction box. The transformer is used to step down
the supply power (115V, 208V, 230V, 460V, 575V) to 24V for
the gas controls, fan delay relay, field supplied motor starter,
etc. To determine the control transformer supplied as well
as any accessory/field supplied transformers required, refer
to Table 12.1
➅ Flame Sensor – (hidden, STD)
Remote flame sensor verifies ignition of all burners,
monitors the flame signal and communicates with the
integrated circuit board.
➆ Flame Roll Out Switch - (STD)
Flame roll out switches are mounted near the burners and
will shut off the gas supply in the event of an unsafe flame
roll out condition.
➇ Auto High Limit Switch - (hidden, STD)
The limit control is mounted in the air stream and will shut
off the gas supply in the event of overheating.
➈ Direct Spark Igniter - (hidden, STD)
Provides spark for direct ignition of the burners.
➉ Manual Reset Control - (hidden, propeller 100-125 only)
Figure 4.1 - Factory Mounted Standard and Optional Features (Models HD/HDB)
➀
➁
➂
➃
➄
➅
➆
➇
➈
➉
342844 6-189.9.indd 4 11/11/14 9:59 PM










