Specification

21
6-189.9
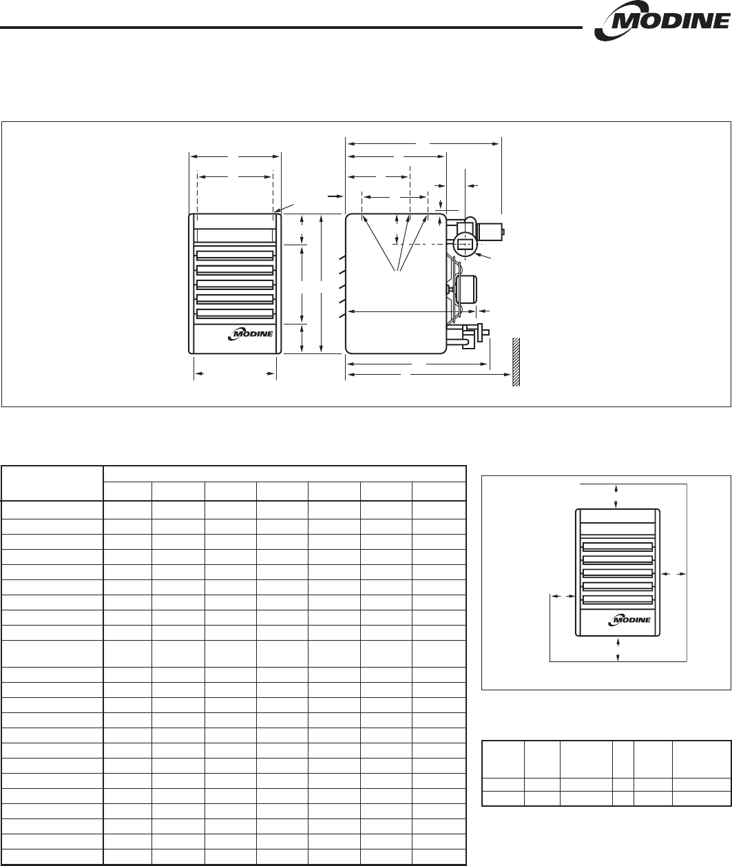
DIMENSIONAL DATA - MODEL PDP
Propeller Units - Model PDP
Dimension Model Number
Symbol PDP 150 PDP 175 PDP 200 PDP 250 PDP 300 PDP 350 PDP 400
A 21 23-1/2 25-5/8 25-5/8 28-5/8 33-5/8 40
B 35-1/4 35-1/4 40-1/4 40-1/4 40-1/4 40-1/4 40-1/4
C 22 22 25 25 25 25 25
D 18-9/16 21-1/16 23-3/16 23-3/16 26-3/16 31-3/16 37-1/2
E 20 20 24 24 24 24 24
F 12 12 13-1/2 13-1/2 14 – –
G 6-9/16 6-9/16 7-1/2 7-1/2 7-1/2 7-1/2 7-1/2
H 17-3/8 19-7/8 22 22 25 30 36-3/8
J ➁ 5 5 5 6 6 6 6
K (Mounting
Holes)
➂
L
➃ 35-13/16 35-9/16 40-3/4 40-3/4 40-3/4 40-3/4 44-3/16
M 29-13/16 29-9/16 34-3/4 34-3/4 34-3/4 34-11/16 38-3/16
W – – – – – 5 5
X – – – – – 16 16
AA 8 8 9 9 9 9 9
BB 7-1/4 7-1/4 7-1/4 7-1/4 7-1/4 7-1/4 7-1/4
CC – – – – – – –
DD 2-3/4 2-3/4 3-3/8 3-3/8 3-3/8 3-3/8 6-13/16
EE 30-1/2 30-1/2 32-7/8 32-7/8 32-7/8 32-7/8 32-7/8
LL 31-1/8 31-1/8 34-7/8 34-7/8 36-1/4 35-1/2 40-1/2
Gas Connections
➄
1/2 1/2 1/2 1/2 1/2 3/4 3/4
Fan Diameter 16 18 20 20 22 22 24
Approx. Weight 168 175 239 239 269 338 418
➀
Do not use propeller units with duct work.
➁
For some models, this is the dimension of the vent transition outlet supplied.
➂
PDP 150 through PDP 300 — 2 holes (and the level hanging adjustment feature). PDP 350 through
PDP 400 — 4 holes. (Listed is the hole diameter and threads per inch to accept threaded rod).
➃
Dimension equals overall plus 6".
➄
For natural gas; may vary depending on control availability.
Table 21.1 - Dimensions (inches) - PDP ➀
Figure 21.2 - Combustible Material and
Service Clearances
Figure 21.1 - Dimensional Drawings
A
H
D (OPENING)
BB
E
AA
B
K
W
X
F
C
M
EE
LL
CC
G
DD
J
L
(MIN. DISTANCE TO WALL)
K
3/8-16 3/8-16 3/8-16 3/8-16 3/8-16 3/8-16 3/8-16
A
D
B
C
Access
Side
Table 21.2 - Combustible Material
Clearances ➀
➀ Provide sufficient room around the heater to allow for
proper combustion and operation of fan. Free area
around the heater must not be less than 1-1/2 times
the discharge area of the unit.
Access Non-Access Top of Power
Model Side Side Top Bottom Exhauster
Size (A) (B) (C) (D) (Not shown)
150-175 1 1 4 12 2
200-400 1 1 5 12 3
342844 6-189.9.indd 21 11/11/14 9:59 PM










