Instructions / Assembly

9
6-584.12
Section C – Horizontal 2-Pipe Vent System
Installation
C1. This section applies to horizontally vented 2-pipe vent
systems (one combustion air inlet pipe and one vent
pipe) and is in addition to “Section A – General
Instructions – All Units”. Category III vent systems listed
by a nationally recognized agency and matching the
diameters specified may be used. Different brands of
vent pipe materials may not be intermixed.
Under no
circumstances should two sections of double wall vent pipe
be joined together within one horizontal vent system due to
the inability to verify complete seal of inner pipes.
C2. Horizontal vent systems terminate horizontally
(sideways).
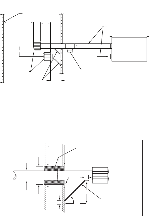
C3. All horizontal vents must be terminated with a listed vent
cap. The cap must terminate a minimum distance from
the external wall, as summarized in Figure 9.1.
C4
. The termination of horizontally vented system must
extend 16" beyond the exterior surface of an exterior
wall.
C5
. The combustion air pipe must be a minimum of 6" below
the vent pipe, and 4" from the exterior wall.
C6. Construct the vent system as shown in Figure 9.1.
C7
. When horizontal vents pass through a combustible wall
(up to 22" thick), the vent passage must be constructed
and insulated as shown in Figure 9.2.
C8. The vent must be supported as shown in Figure 9.2.
C9. When condensation may be a problem, the vent system
shall not terminate over public walkways or over an area
where condensate or vapor could create a nuisance or
hazard or could be detrimental to the operation of
regulators, relief openings, or other equipment.
C10. Maintain a 1/4" per foot downward slope away from the
heater and place a drip leg with clean out near the exit of
the vent as shown in Figure 9.1, or allow the condensate
to drip out the end.
C11. For a vent termination located under an eave, the
distance of the overhang must not exceed 24". The
clearance to combustibles above the exterior vent must
be maintained at a minimum of 12". Consult the National
Fuel Gas Code for additional requirements for eaves that
have ventilation openings.
C12. Once venting is complete, proceed to section titled
“Installation – Gas Connections”.
INSTALLATION - VENTING
METAL
SLEEVE
FIBER GLASS
INSULATION
MIN. 2"
2" MIN.
VENT TERMINATION
SUPPORT BRACKET
(where required)
(Make from 1" x 1" steel angle)
9"
9"
45
1"
METAL
SLEEVE
2" MIN.
VENT PIPE
DIAMETER
METAL FACE
PLATE
1"
Figure 9.2 - Exhaust Vent Construction Through
Combustible Walls and Support Bracket
Figure 9.1 - Horizontal Venting with Downward Pitch
COMBUSTION AIR
EXHAUST
SLOPE 1/4" PER FOOT
DOWNWARD FROM UNIT
TEE WITH DRIP LEG AND
CLEANOUT CAP AT LOW
POINT OF VENT SYSTEM
LISTED
TERMINAL
SUPPORT BRACKET
6" MIN
2' MIN
4" MIN
12"
ADJACENT
BUILDING










