Instructions / Assembly

8
6-583.11
Section B – Vertical Vent System Installation
B1. This section applies to vertically vented Category I
vent systems and is in addition to “Section A – General
Instructions – All Units”.
B2. Vertical vent systems terminate vertically, and must be
sized in accordance with the National Fuel Gas Code, ANSI
Z223.1 (NFPA 54) - latest edition.
B3. The horizontal portion of the vent run cannot exceed 75%
of the vertical rise (Example: If the vent height is 10', the
horizontal portion of the vent system cannot exceed 7.5').
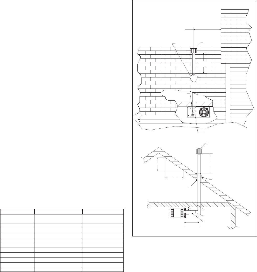
B4. It is recommended to install a tee with drip leg and clean out
cap as shown in Figure 8.1.
B5. The vent terminates a minimum of 5’ above the vent
connector on the unit.
B6. All vertically vented heaters that are Category I must be
connected to a chimney or vent complying with a recognized
standard, or a lined masonry (or concrete) chimney with
a material acceptable to the authority having jurisdiction.
Venting into an unlined masonry chimney is not permitted.
Refer to the National Fuel Gas Code for common venting
and pages 11-12 of this manual.
B7. Use a listed vent terminal to reduce down drafts and
moisture in the vent.
B8. Double wall vent pipe is recommended, although single wall
can be used if the requirements of the National Fuel Gas
Code are followed.
B9. Vertical vents must terminate a minimum horizontal and
vertical distance from roof lines and adjacent walls or
obstructions. These minimum distances are outlined as
follows (based on National Fuel Gas Code requirements for
vents with diameters less than 12”):
•Fordouble wall vent pipe and 8' or greater horizontal
distance to any vertical wall or similar obstruction, the vent
must terminate above the roof in accordance with Figure
8.1 and Table 8.1.
•Fordouble wall vent pipe and less than 8' horizontal
distance to any vertical wall or similar obstruction, the vent
must terminate at least 2' above the highest point where it
passes through a roof of a building and at least 2' higher
than any portion of a building within a horizontal distance of
10' (see Figure 8.1).
Figure 8.1 - Vertical Vent Termination for Double
Wall Vent Pipe and Greater Than or Less Than 8’
Horizontally From a Vertical Wall or Obstruction
INSTALLATION - VENTING
Table 8.1 - Minimum Height from Roof to Lowest
Discharge Opening
Rise X (in) Roof Pitch Min Height H (ft) ➀
0-6 Flat to 6/12 1.00
6-7 6/12 to 7/12 1.25
7-8 7/12 to 8/12 1.50
8-9 8/12 to 9/12 2.00
9-10 9/12 to 10/12 2.50
10-11 10/12 to 11/12 3.25
11-12 11/12 to 12/12 4.00
12-14 12/12 to 14/12 5.00
14-16 14/12 to 16/12 6.00
16-18 16/12 to 18/12 7.00
18-20 18/12 to 20/12 7.50
20-21 20/12 to 21/12 8.00
➀ Size according to expected snow depth.
"H" MIN*
(SEE TABLE 8.1)
12" MIN
RECOMMENDED
4" MIN
IF DISTANCE TO ADJACENT WALL IS
LESS THAN 8 FEET, THEN VENT MUST
TERMINATE AT LEAST 2 FEET ABOVE
THE HIGHEST POINT OF THE WALL
THAT IS WITHIN 8 FEET HORIZONTAL.
OTHERWISE, REFER TO TABLE 8.1 FOR
"H" DIMENSION.
BACK VIEW
ROOF PITCH IS:
X / 12
USE LISTED THIMBLE
THROUGH CEILING
TEE WITH DRIP LEG
AND CLEANOUT CAP
ROOF FLASHING
USE LISTED THIMBLE
THROUGH ROOF
LISTED TERMINAL
DOWNWARD SLOPE
1/4" PER FOOT
TOWARD DRIP LEG
USE LISTED THIMBLE
THROUGH CEILING
AND ROOF
TEE WITH DRIP LEG
AND CLEANOUT CAP
LISTED TERMINAL
ROOF FLASHING
X
12
"H" MIN*
(SEE TABLE 8.1)










