Installation Guide

2Modern Forms retains the right to modify the design of our products at any time as part of the company's continuous improvement program.
modernforms.com
Phone (800) 526.2588
Fax (800) 526.2585
Headquarters/Eastern Distribution Center
44 Harbor Park Drive
Port Washington, NY 11050
Central Distribution Center
1600 Distribution Ct
Lithia Springs, GA 30122
Western Distribution Center
1750 Archibald Avenue
Ontario, CA 91760
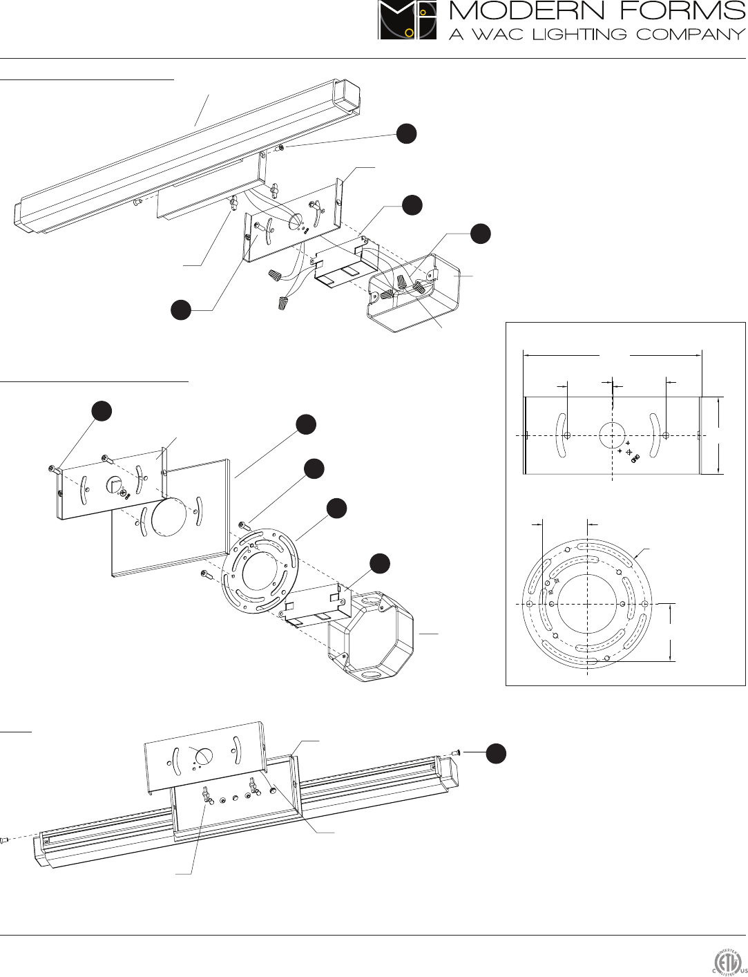
INSTALLATION INSTRUCTION
217 - LED Wall Sconce
WS-21718
FIG. 1 MOUNT ON SWITCH BOX
FIG. 2 MOUNT ON JUNCTION BOX
FIG. 3
Ø
4"
Mounting Screw
Driver
Wire
Connector
Back Plate Dimensions
Mounting Plate Dimensions
Mounting
Screw
Fixture Back Plate
Wire
Assembly Screw
Assembly Screw
Junction Box Screw
Mounting Ring
Driver
Junction
Box
Mounting Plate
Switch
Box
Ground
Wire
Mounting Plate
Fixture
Junction Box Screw
Adjustable Nut
Adjustable Nut
C1
B1
G1
A1
B1
F1
E1
C1
D1
G1
GND
5 1/2"
1 3/8"
1 3/4"
1 3/8" 1 5/8"
2 3/8"






