Service manual

7
10-1/4
6-1/4
3/4
2-5/16
1-7/8
5/16
12-3/8
10-1/161-7/8
1/8
3-7/8
6-13/16
3-7/8 6-13/16
16-5/16 16-5/16
3/16
9-15/16
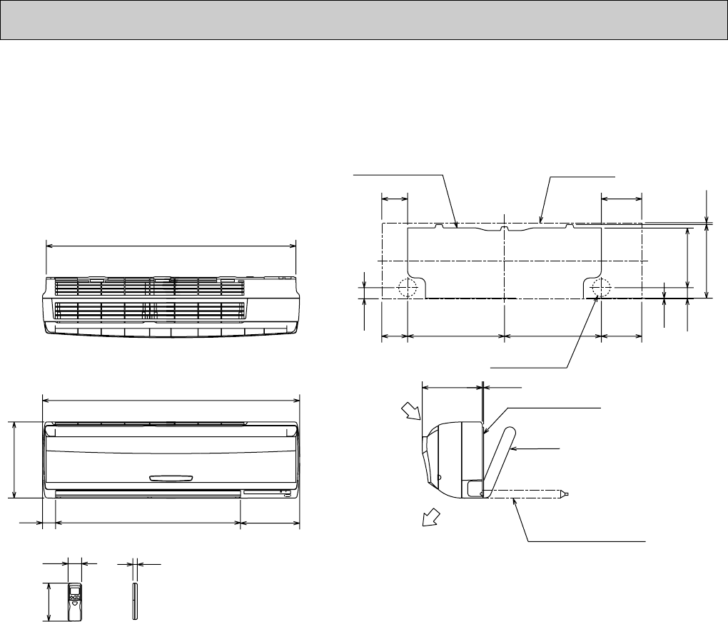
31-1/8
2-3/16
42-1/16
43-5/16
12-13/16
Air out
Air in
Insulation [1-1/8
Drain hose [5/8
(Connected part O.D)
Installation plate
Wall hole [3
Wireless remote controller
Installation plate
Indoor unit
{
Liquid line [1/4 19-11/16
Gas line [5/8 16-15/16
Insulation [1-15/16 O.D
[1-1/4 I.D
MSZ-A24NA
MSY-A24NA
Unit : inch
OB450-1.qxp 06.11.29 1:37 PM Page 7