Service manual

6
4
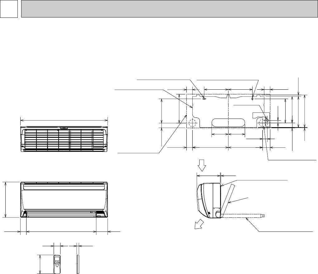
OUTLINES AND DIMENSIONS
Unit : inch
11-3/4
424-9/16
30-11/16
8-1/4
3/16
2-1/8
3/4
6-1/4
2-5/16
Air in
Air out
Installation plate
Insulation [1-1/8
Drain hose [5/8
(Connected part O.D)
Liquid line [1/4 19-11/16
Gas line [3/8 16-15/16
Insulation [1-3/8 O.D
[3/4 I.D
{
6-1/8 6-1/8
7/8
1-3/4
13-3/16 12-5/8
1-5/8 8-7/16
10-1/8
1-11/16
8-7/16
1/8
11-5/16
2-3/4
2-3/16
2-3/16 2-3/16
8-7/8 8-7/8
9/1610-3/4
9-3/16
Wall hole [2-9/16
Indoor unit
Installation plate
7/16x13/16
Oblong hole
7/16x1 Oblong hole
7/8
hole
MSZ-A09NA MSY-A15NA
MSZ-A12NA MSY-A17NA
MSZ-A15NA
MSZ-A17NA
OB450-1.qxp 06.11.29 1:37 PM Page 6