User Guide

19
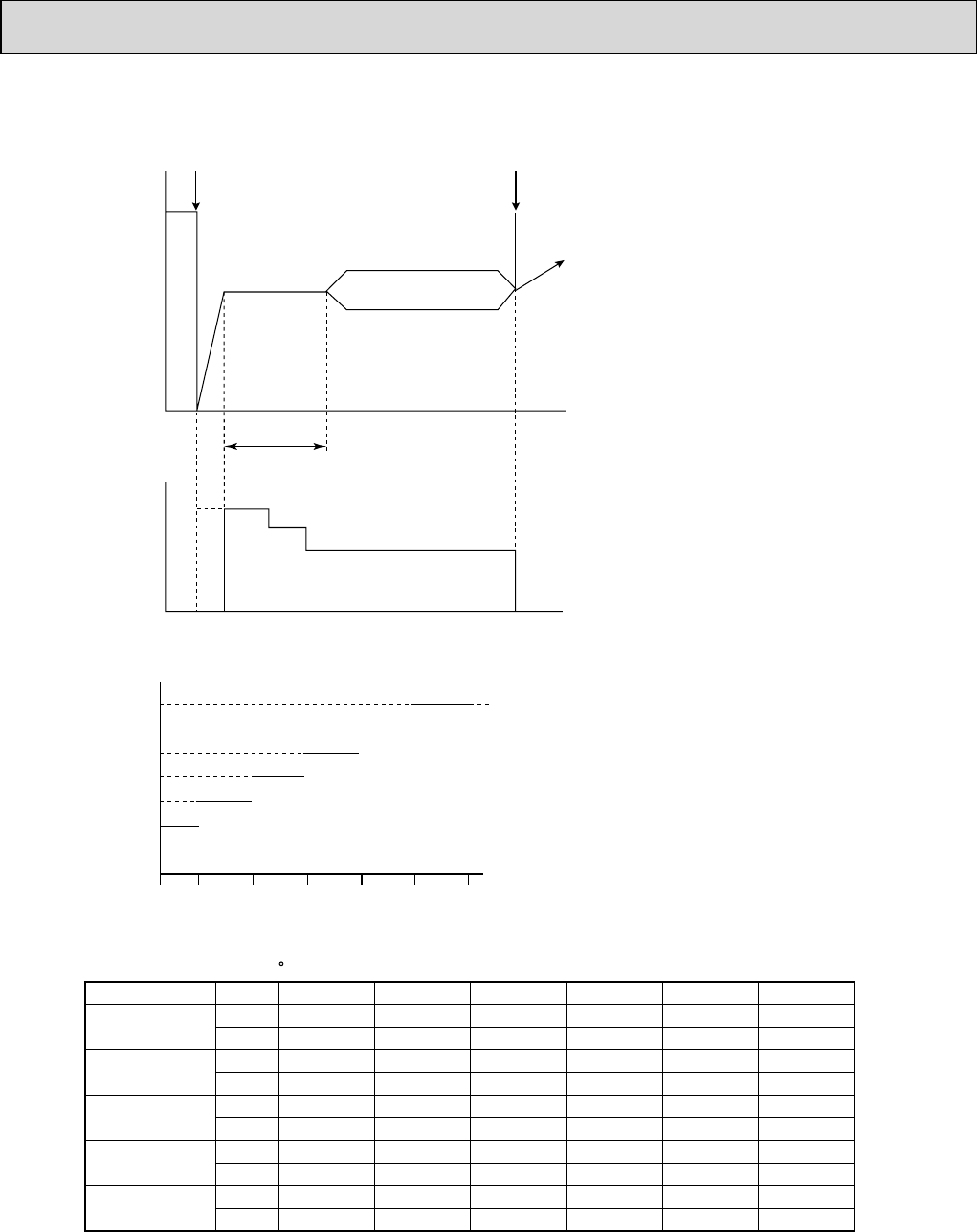
(2) Time chart
OFF Time
Time
ON
Operational frequency
of the compressor
Commanded
to open
Standard
opening
degree
Opening degree is
corrected according
to discharge
temperature.
Positioning
Air conditioner ON
Air conditioner OFF
(thermostat off)
LEV opening degree
about 5 minutes <COOL, DRY>
about 15 minutes <HEAT>
(3) Control data
06
05
04
03
02
01
LEV opening degree
A(target discharge temperature)
B
C
D
E
F
30 50 70
Operational frequency of the compressor
90 110 130
(Hz)
(a) Reference value of target discharge temperature
(COOL / HEAT (MUZ) F)
Applied model A B C D E F
MUZ-A09/12
COOL 122 127 140 151 158 158
HEAT 113 126 138 154 169 169
MUZ-A15/17
MUY-A15/17
COOL 129 136 147 158 158 158
HEAT 120 136 151 165 180 185
MUZ-A24
MUY-A24
COOL 140 140 140 145 147 153
HEAT 140 145 149 153 158 158
MUZ-FD
COOL 120 131 142 153 162 169
HEAT 109 124 138 156 167 176
MUZ-D
MUY-D
COOL 126 135 149 167 183 187
HEAT 131 140 149 154 162 167
In COOL operation, the two indoor coil thermistors (one main and one sub) sense temperature ununiformity (super
heat) at the heat exchanger, and when temperature difference have developed, the indoor coil thermistors adjust
LEV opening degree to get approximate 10 degrees lower temperature than the target temperature in the table
above, thus diminishing super heat.










