Hardware Manual
Table Of Contents
- Front Cover
- Manual Number
- Guidelines for the safety
- Marine standard
- Note Concerning the CE Marking
- EMC
- LVD
- Associated Manuals
- Table of Contents
- 1. Introduction
- 2. Terminal layouts
- 3. Installation Notes
- 4. Power Supply
- 5. Inputs
- 6. Outputs
- 7. Diagnostics
- 8. Appendix
- Back Cover

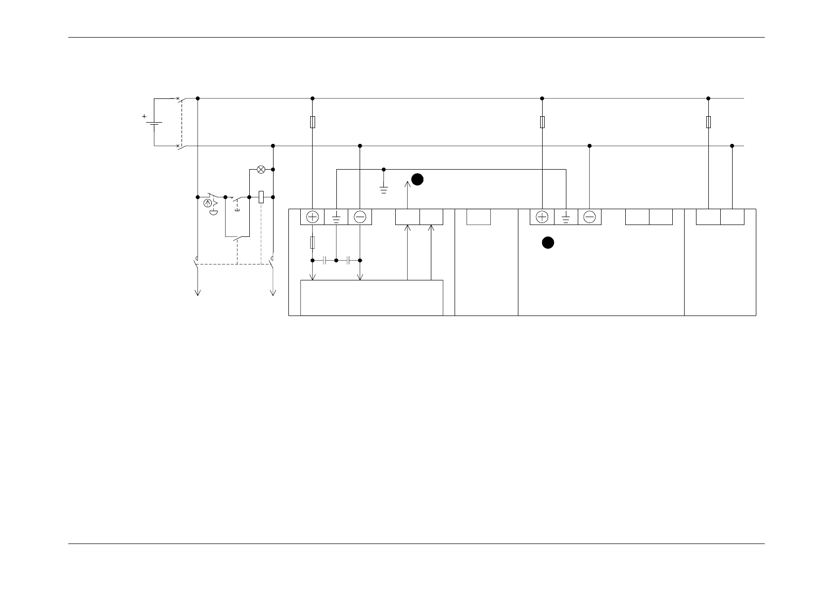
FX1N Series Programmable Controllers Power Supply 4.
4-6
4.5.2 24V DC Power supply
*1 It is recommended to use the same power source to power the main unit, powered
extension units and special function blocks/units. If two sources are required, follow the
below guidelines:
- Supply power to the powered extension units and special function blocks/units before
or at the same time the main unit is powered.
- The power supplies may be cut the same time after ensuring system safety.
*2 Never connect the "0V" and the "-" terminals of a DC power supply type main unit.
➊
➌➍
➎
➏
➐
➑
➒
➋
➓
MC
24V 0V
DC/DC
Converter
24+ 24-
➏
24V DC
Extension
Block
S/S 0V
➋
Powered extension unit
(Only connect DC power
supply type for FX
0N
Series)
24+ 24-
Special
Function
Block/Unit
11
S/S
➋
12
*1 *1*2 *3 *2*3










