Specifications

MIRCOM TECHNOLOGIES LIMITED, 9500 Series: No Subscriber Line Page 52
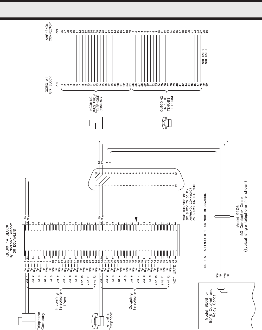
APPENDIX A-1: CA-71A BIX Block Wiring Configuration