Specifications

MIRCOM TECHNOLOGIES LIMITED, 9500 Series: No Subscriber Line Page 17
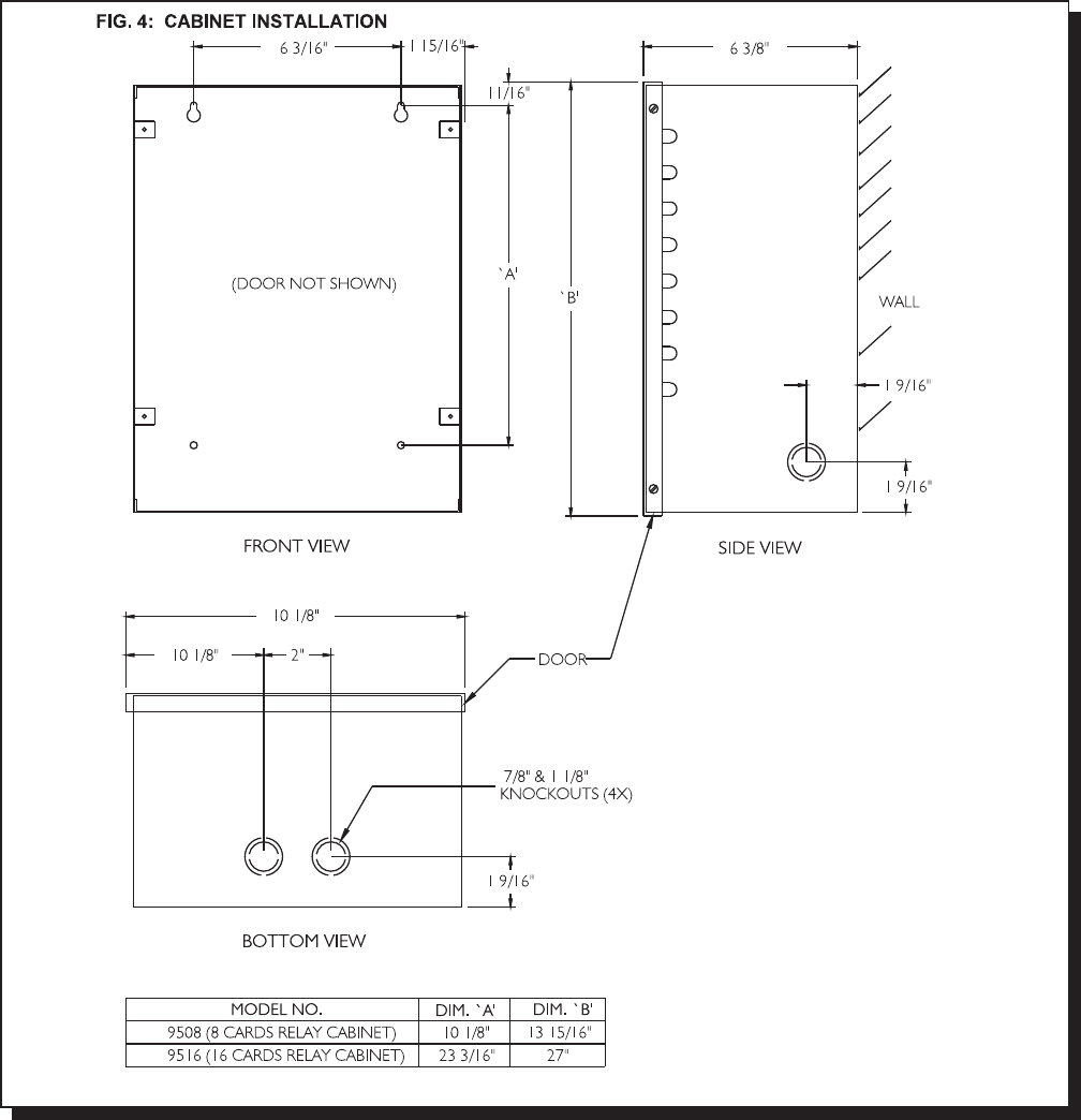
MOUNTING THE DECODER/RELAY CABINET
Mount the Decoder/Relay Cabinet as shown on FIG. 4 using the supplied screws.