Specifications

MIRCOM TECHNOLOGIES LIMITED, 9500 Series: No Subscriber Line Page 15
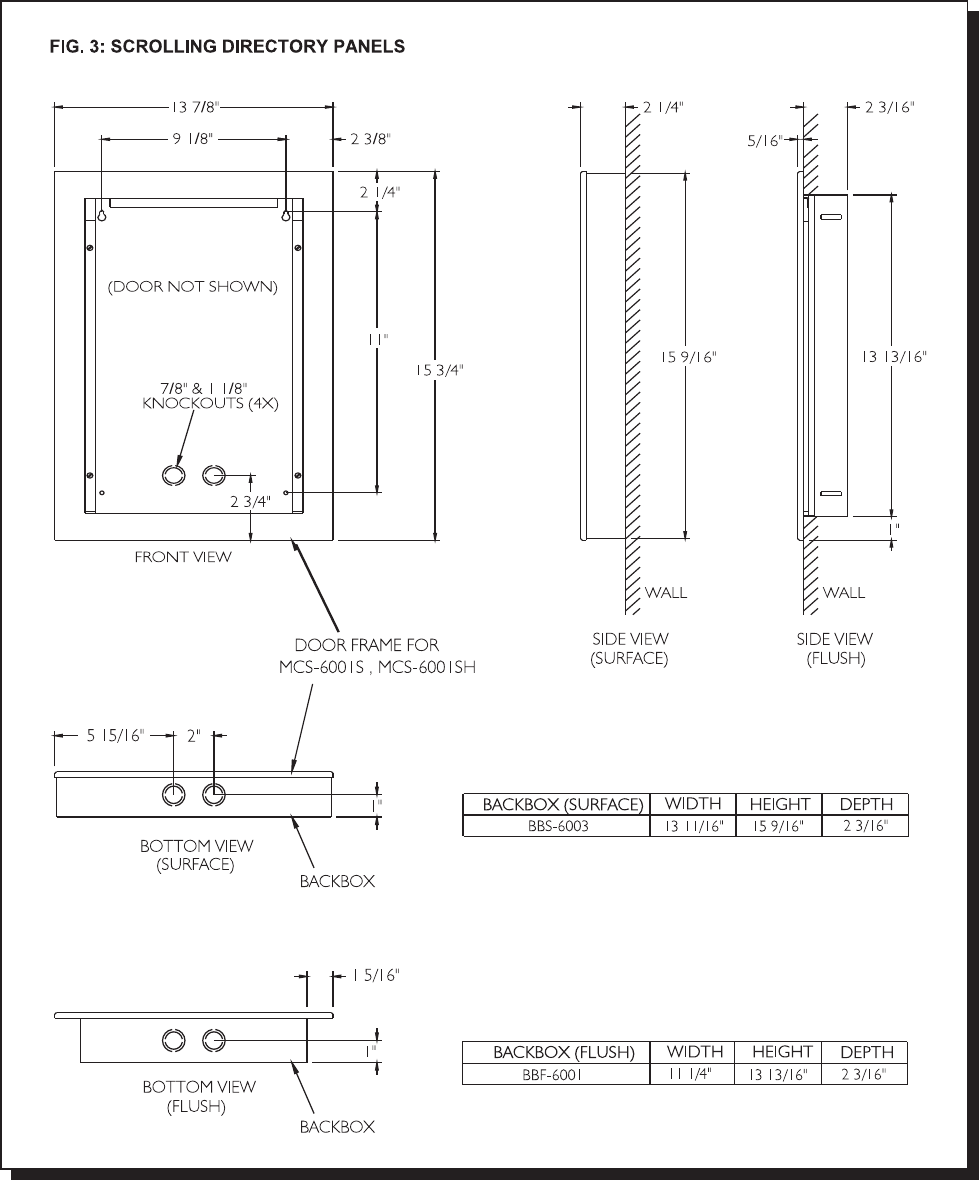
Mount the panels as shown on FIG.3 (for scrolling) or FIG.3A (for non-scrolling) using the supplied screws.