Specifications
Table Of Contents
- Page 1
- Page 2
- Page 3
- Page 4
- Page 5
- Page 6
- Page 7
- Page 8
- Page 9
- Page 10
- Page 11
- Page 12
- Page 13
- Page 14
- Page 15
- Page 16
- Page 17
- Page 18
- Page 19
- Page 20
- Page 21
- Page 22
- Page 23
- Page 24
- Page 25
- Page 26
- Page 27
- Page 28
- Page 29
- Page 30
- Page 31
- Page 32
- Page 33
- Page 34
- Page 35
- Page 36
- Page 37
- Page 38
- Page 39
- Page 40
- Page 41
- Page 42
- Page 43
- Page 44
- Page 45
- Page 46
- Page 47
- Page 48
- Page 49
- Page 50
- Page 51
- Page 52
- Page 53
- Page 54
- Page 55
- Page 56
- Page 57
- Page 58
- Page 59
- Page 60
- Page 61
- Page 62
- Page 63
- Page 64
- Page 65
- Page 66
- Page 67

MIRCOM TECHNOLOGIES LIMITED, 9500 Series: No Subscriber Line Page 14
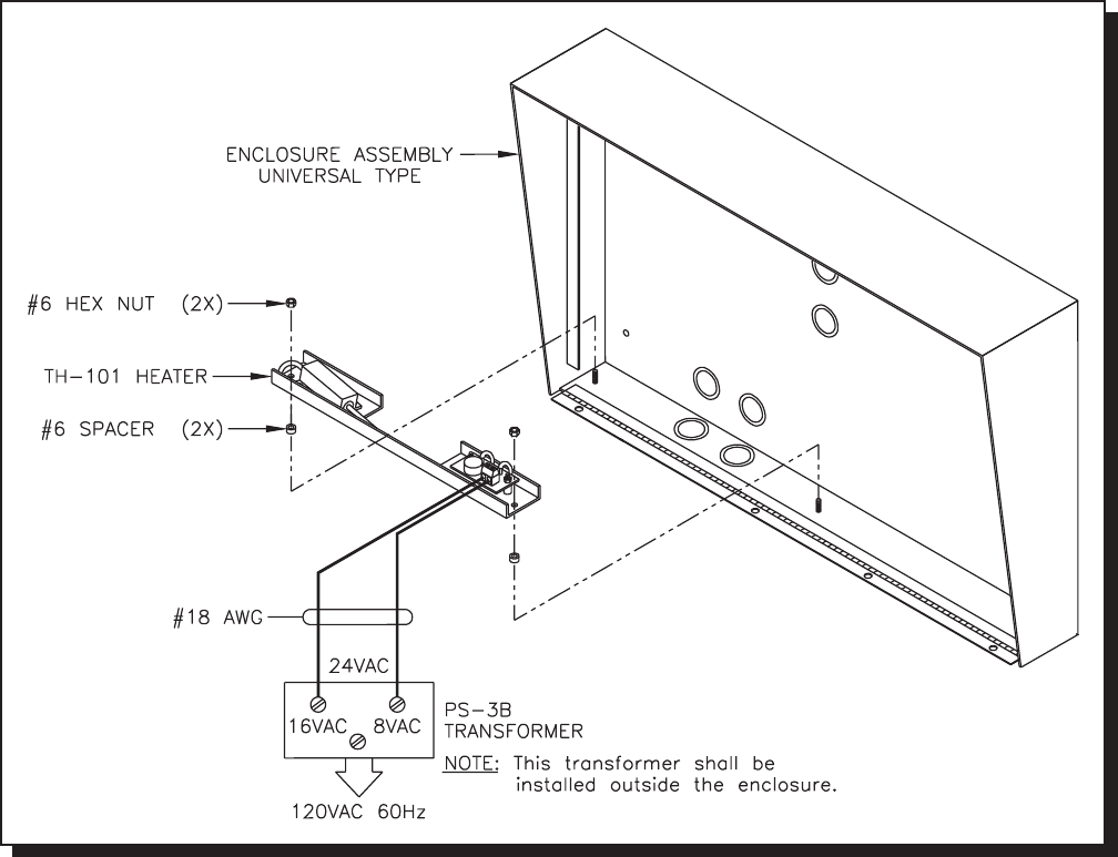
MOUNTING THE THERMOSTAT HEATER KIT MODEL TH-101 (OPTIONAL)
Mount the Heater Kit according to Fig 2A . Install the TH-101 Heater into bottom left hand corner of the universal
enclosure using the two spacers and two hex nuts provided. Use a pair of #18 AWG wires to connect from the
TH-101 unit to 24VAC tap on the PS-3B transformer. The transformer must be installed outside the enclosure.
Fig. 2A: HEATER INSTALLATION
MOUNTING THE CONTINENTAL TYPE LOBBY/ENTRY PANEL










