User Manual

- 10 -
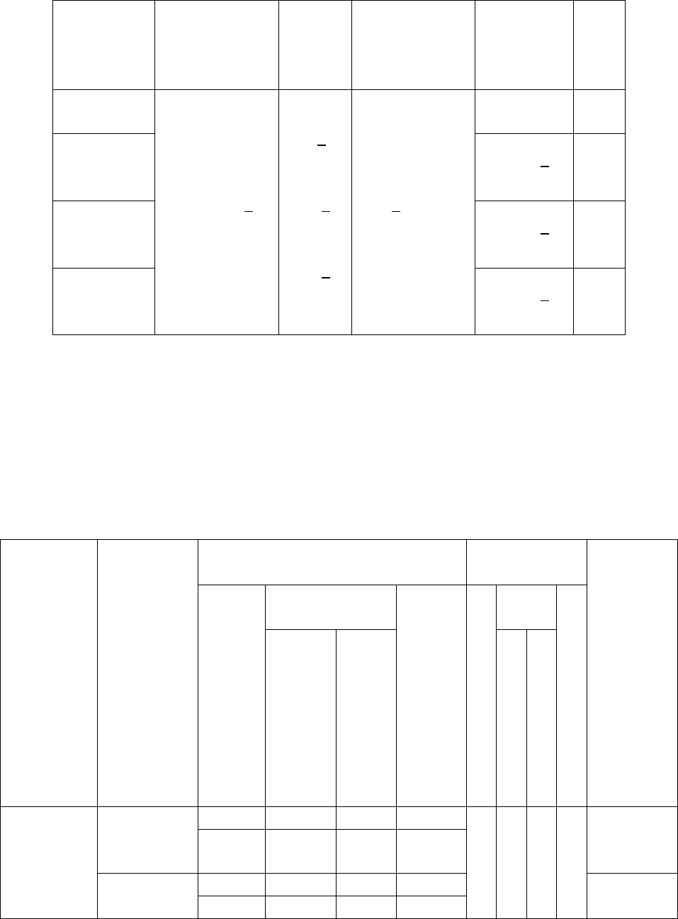
①:Size and package parameter information
< Table 3>
Model
Overall
dimensions(IN)
L x W x H
Packing
size(IN)
L x W x H
Oven
dimensions(IN)
L x W x H
Griddle
working
area(IN)
L x W
Number
of
oven
C-RO6
36*31*57
3
8
38
5
8
*41
3
8
*41
3
8
26
1
2
*26*14
none
1
C-RO4-12GR
C-RO4-12GL
12*20
5
8
1
C-RO2-24GR
C-RO2-24GL
24*20
5
8
1
C-RO-36G
36*20
5
8
1
② Information of Gas Supply and Burner
The minimum supplied gas pressure regulator is factory set at 5”Natural
Gas W.C, and 10”L.P. Gas W.C. The external thread of product’s intake-tube
is 3/4 inches.
< Table 4>
Model
Gas Species
and Intake
manifold
pressure
(in.W.C.)
Nozzle No. and Per BTU B.T.U/h
Number of
burners
Total
BTUB.T.U
./h
Hot
plates
Griddle
Oven
H
o
t
p
l
a
t
e
s
Gridd
le
O
v
e
n
U-
SHAPE
I-
SHAPE
U
-
S
H
A
P
E
I
-
S
H
A
P
E
C-RO6
Natural
Gas
5
NG45
NG42
NG45
NG39
6
1
177,000
25,000
27,000
21000
27,000
Propane
10
LP54
LP52
LP54
LP52
165,000
23,000
27,000
21000
27,000