Product Manual

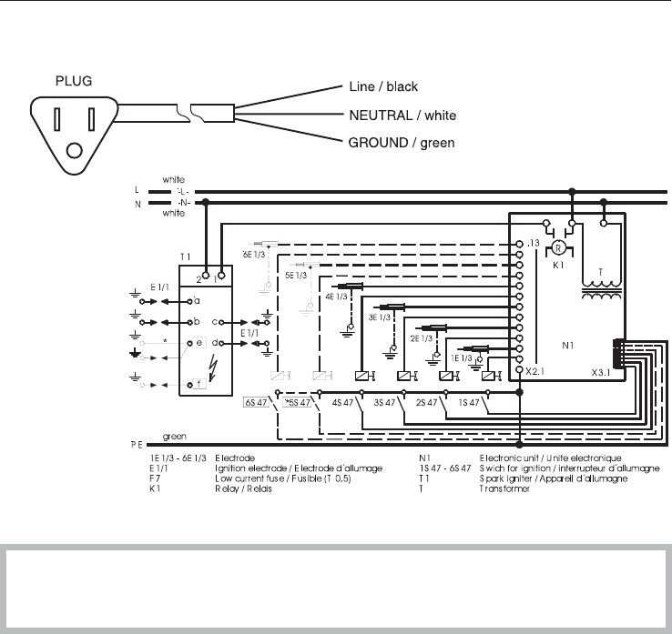
Wiring diagram
,
Caution: Label all wires prior to disconnection when servicing controls.
Wiring errors can cause improper and dangerous operation.
Verify proper operation after servicing.
Electrical connection
31