Operation Manual
Table Of Contents
- Inhalt
- Sicherheitshinweise und Warnungen
- Ihr Beitrag zum Umweltschutz
- Übersicht
- Erste Inbetriebnahme
- Induktion
- Tipps zum Energiesparen
- Einstellbereiche
- Bedienung
- Timer
- Zusatzfunktionen
- Sicherheitseinrichtungen
- Reinigung und Pflege
- Was tun, wenn ...
- Nachkaufbares Zubehör
- Miele@home/Con@ctivity
- Sicherheitshinweise zum Einbau
- Sicherheitsabstände
- Rahmen-/Facettenkochfelder
- Flächenbündige Kochfelder
- Elektroanschluss
- Kundendienst
- Produktdatenblätter

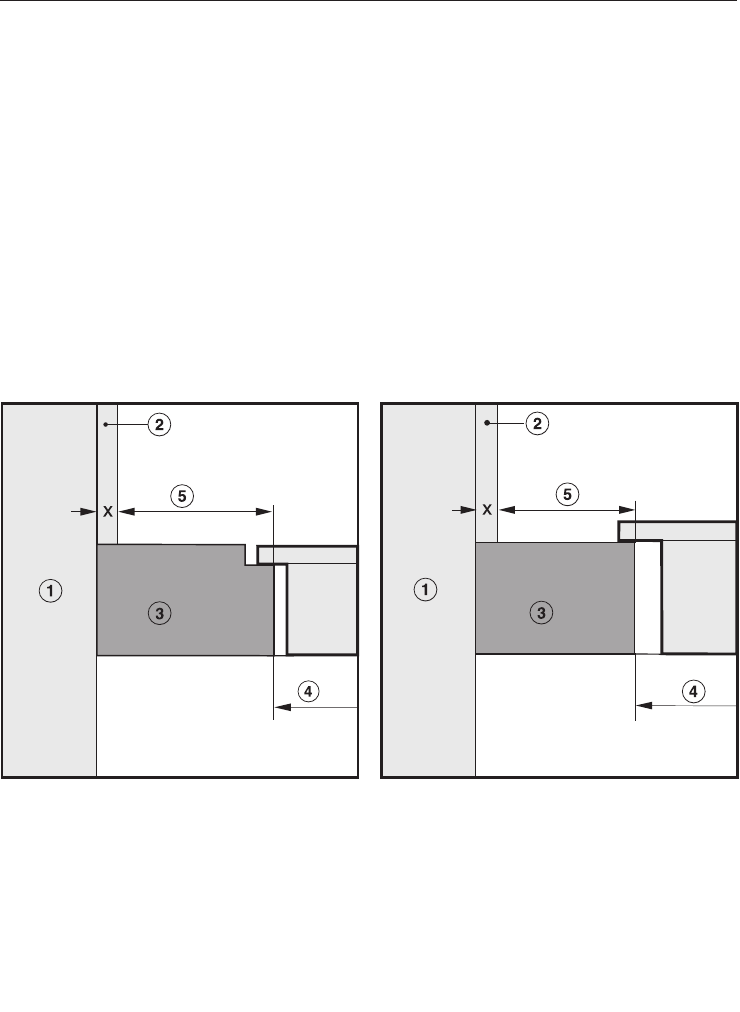
Sicherheitsabstände
53
Sicherheitsabstand zu Nischenverkleidung
Wenn eine Nischenverkleidung angebracht wird, muss ein Mindestabstand zwi-
schen Arbeitsplattenausschnitt und Verkleidung eingehalten werden, da hohe Tem-
peraturen Materialien verändern oder zerstören können.
Bei einer Verkleidung aus brennbarem Material (z.B. Holz) muss der Mindestab-
stand zwischen Arbeitsplattenausschnitt und Nischenverkleidung 50mm betra-
gen.
Bei einer Verkleidung aus nicht brennbarem Material (z.B. Metall, Naturstein, Kera-
mikfliesen) beträgt der Mindestabstand zwischen Arbeitsplattenausschnitt und
Nischenverkleidung 50mm minus Stärke der Verkleidung.
Beispiel: Stärke der Nischenverkleidung 15mm
50mm - 15mm = Mindestabstand 35mm
Flächenbündige Kochfelder Rahmen-/Facettenkochfelder
a
Mauerwerk
b
Nischenverkleidung Maß x = Stärke der Nischenverkleidung
c
Arbeitsplatte
d
Ausschnitt in der Arbeitsplatte
e
Mindestabstand bei
brennbaren Materialien 50mm
nicht brennbaren Materialien 50mm - Maß x










