Instructions for use / assembly instructions
Table Of Contents
- Indice
- Indicazioni per la sicurezza e avvertenze 4
- Descrizione apparecchio 14
- Il Vostro contributo alla tutela dell'ambiente 19
- Prima messa in funzione 20
- Induzione 21
- Aree di regolazione 24
- Uso 25
- Consigli per risparmiare energia elettrica 31
- Timer 32
- Funzioni supplementari 35
- Dispositivi di sicurezza 36
- Pulizia e manutenzione 39
- Guasti, cosa fare? 41
- Accessori su richiesta 44
- Istruzioni di sicurezza per il montaggio 45
- Distanze di sicurezza 46
- Piani con cornice/modanatura inclinata del bordo 50
- Piani di cottura a filo 54
- Allacciamento elettrico 58
- Assistenza tecnica, targhetta dati, garanzia 61

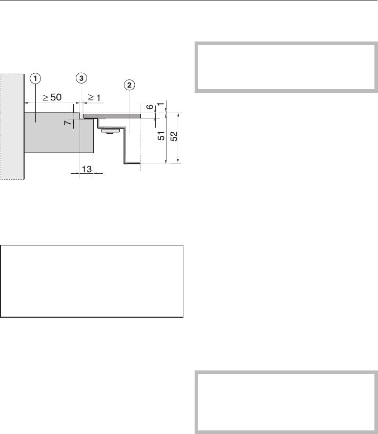
Piano di lavoro in pietra natu
-
rale
Creare l'intaglio
a Superficie di lavoro
b Piano di cottura
c Fessura
Poiché le misure della lastra in vetro-
ceramica e dell’intaglio nel piano di
lavoro sono soggette a una certa tol-
leranza, la larghezza della fessura
c può variare (min. 1 mm).
^
Realizzare un intaglio nel piano di la
-
voro in base alle misure indicate. Ri
-
spettare le distanze di sicurezza
(v. capitolo "Istruzioni di sicurezza
per il montaggio").
Allacciare il cavo di alimentazione
elettrica al piano di cottura
Il cavo di alimentazione può essere
allacciato all'elettrodomestico solo
da un elettricista qualificato.
^
Allacciare il cavo di alimentazione al
piano di cottura attenendosi allo
schema di allacciamento (v. capitolo
"Allacciamento elettrico/ schema di
allacciamento").
Applicare il piano di lavoro
^ Far passare il cavo di alimentazione
elettrica verso il basso attraverso
l'intaglio.
^ Applicare il piano di lavoro
b nell’intaglio e centrarlo.
^ Allacciare il piano di cottura.
^ Verificare il funzionamento del piano
di cottura.
^
Spruzzare nella fessura rimasta c la
guarnizione in silicone termoresisten
-
te (almeno 160°C).
Utilizzare esclusivamente una guar
-
nizione in silicone adatta per la pie
-
tra naturale e seguire le istruzioni
del produttore della guarnizione.
Piani di cottura a filo
56