Instructions for use / assembly instructions
Table Of Contents
- Indice
- Indicazioni per la sicurezza e avvertenze 4
- Descrizione apparecchio 14
- Il Vostro contributo alla tutela dell'ambiente 19
- Prima messa in funzione 20
- Induzione 21
- Aree di regolazione 24
- Uso 25
- Consigli per risparmiare energia elettrica 31
- Timer 32
- Funzioni supplementari 35
- Dispositivi di sicurezza 36
- Pulizia e manutenzione 39
- Guasti, cosa fare? 41
- Accessori su richiesta 44
- Istruzioni di sicurezza per il montaggio 45
- Distanze di sicurezza 46
- Piani con cornice/modanatura inclinata del bordo 50
- Piani di cottura a filo 54
- Allacciamento elettrico 58
- Assistenza tecnica, targhetta dati, garanzia 61

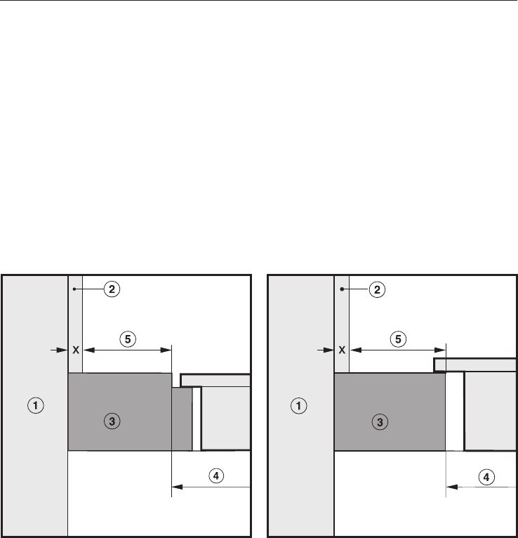
Distanza di sicurezza dal rivestimento della nicchia
Se si applica un rivestimento sulla nicchia occorre rispettare una distanza minima
tra l'intaglio del piano di lavoro e il rivestimento poiché le temperature elevate pos
-
sono modificare o danneggiare i materiali.
Se il rivestimento è in materiale infiammabile (p.es. legno) la distanza minima
e tra intaglio del piano di lavoro e rivestimento deve essere di 50 mm.
Se il rivestimento è in materiale non infiammabile (p.es. metallo, pietra naturale,
piastrelle in ceramica) la distanza minima e tra intaglio del piano di lavoro e rive
-
stimento deve essere di 50 mm meno lo spessore del rivestimento.
Esempio: spessore del rivestimento 15 mm
50 mm - 15 mm = distanza minima 35 mm
Piani cottura a filo Piani cottura con cornice/sfaccettati
a Muro
b Rivestimento nicchia
misura x = spessore del rivestimento
c Piano di lavoro
d Intaglio nel piano di lavoro
d Distanza minima
per materiali infiammabili 50 mm
per materiali non infiammabili 50 mm - misura x.
Distanze di sicurezza
49