Spec Sheet
Manuals
Brands
Miele Manuals
Built-In Bottom Freezer Refrigerators
Miele PerfectCool Panel Ready Built-In Bottom Freezer Refrigerator
1
2
3
4
5
6
7
8
9
PerfectCool Bottom Mount Refrigerator
KFNS 37692 iDE-1
KFNS 37692 iDE-1
Page 7 of 9
Specification Sheets TRS 05232017
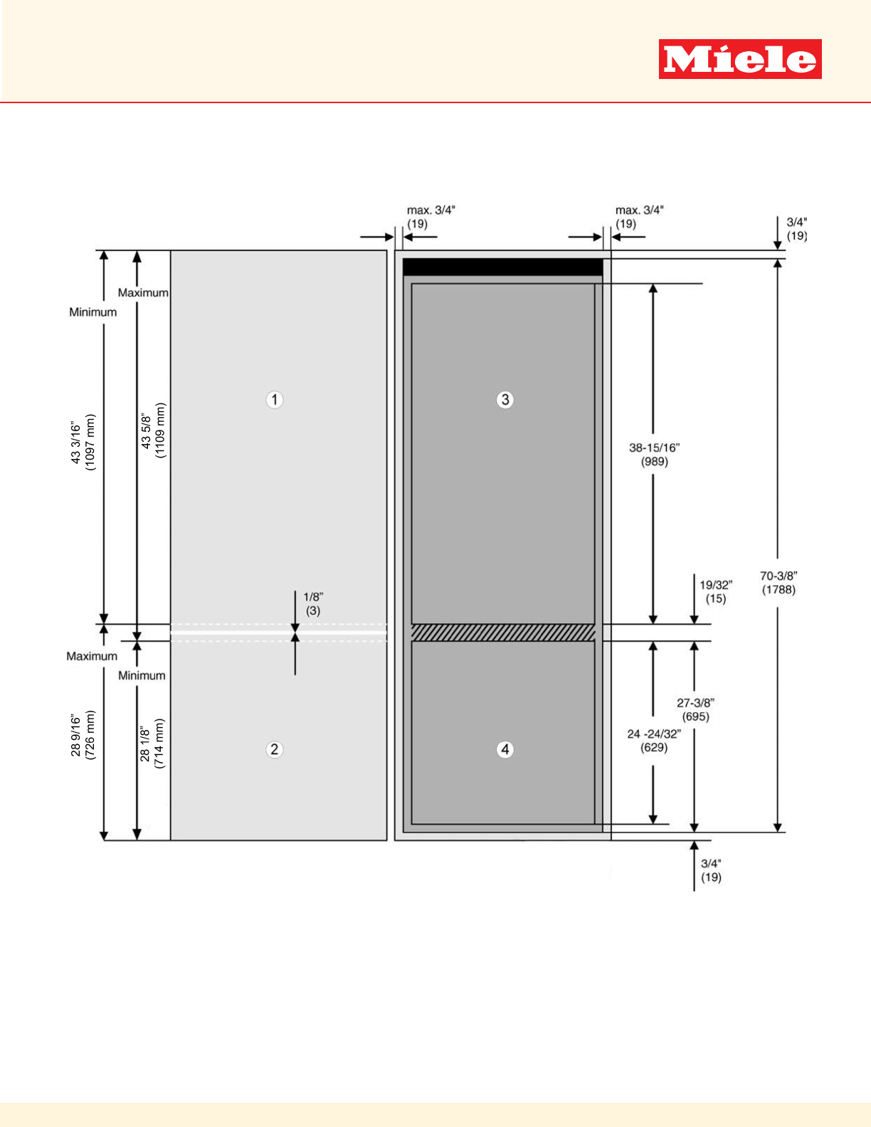
j
- T
op door panel
k
- Bottom door panel
l
- Unit's top door
m
- Unit’s bottom door
CUSTOM P
ANEL
1
...
...
5
6
7
8
9