Instructions for use / assembly instructions

Table Of Contents
Installation
*INSTALLATION*
180
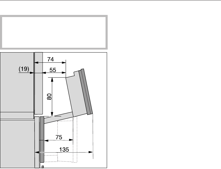
Schwenkbereich der Blende
Im Schwenkbereich der Blende darf
sich kein Gegenstand (z.B. Türgriff)
befinden, der das Öffnen und Schlie-
ßen der Blende behindern kann.