Instructions for use / assembly instructions

Table Of Contents
Installation
*INSTALLATION*
179
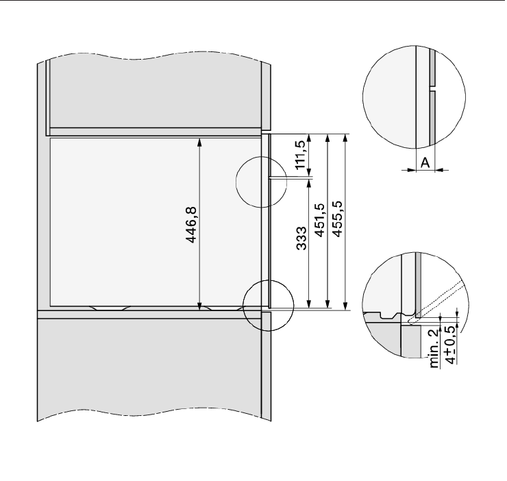
Seitenansicht
A Glasfront: 22mm
Metallfront: 23,3mm