Instructions for use and assembly instructions

Table Of Contents
Installation
*INSTALLATION*
161
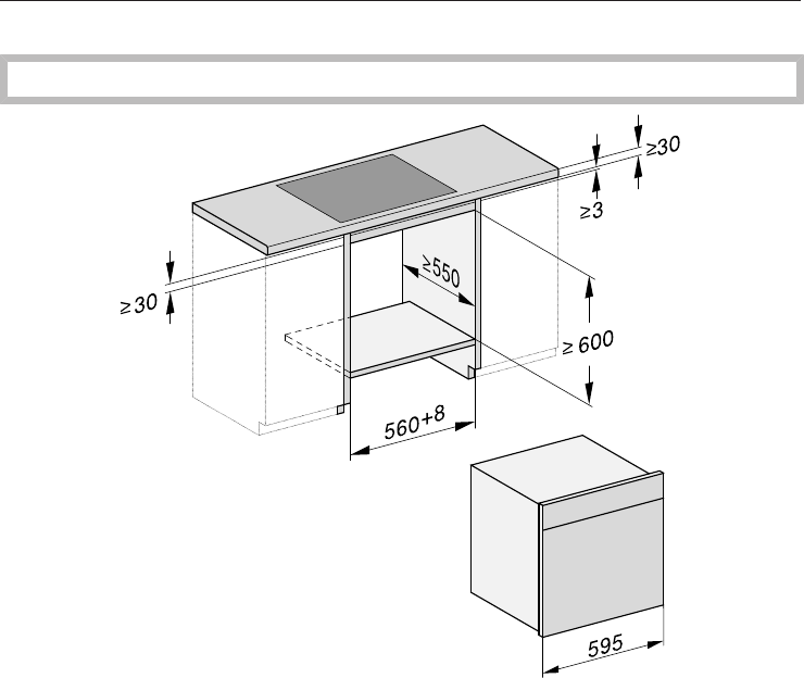
Encastrement dans un meuble bas
Il ne doit pas y avoir de paroi arrière dans la niche d'encastrement.