Instructions for use / assembly instructions

Table Of Contents
Installazione
*INSTALLATION*
103
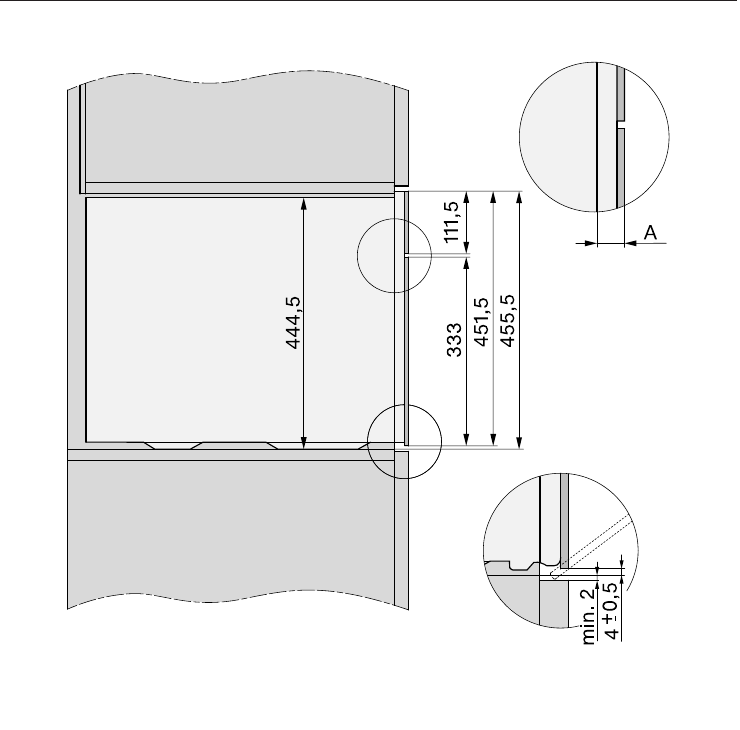
Vista laterale
A Frontale in vetro: 22mm
Frontale in metallo: 23,3mm