User Installation Instructions

安装
*INSTALLATION*
39
6个螺钉 5x60毫米
6个膨胀管 8x50毫米
用于固定在墙壁上。
螺钉和膨胀管仅为在实心墙壁中使
用而设计。
对于其他类型的墙壁结构,需要替代
的固定装置。
确保墙壁能够承受抽油烟机的重量。
2 M6 紧定螺母
用于固定电器。
2个螺钉,3.9x7.5毫米
用于固定烟囱。
Montage
Installation
Montaje
Montaggio
Montering
Montagem
Asennus
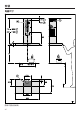
安装说明图纸
请参见安装说明图纸,以了解有关安装
本电器的各个步骤的详情。
再循环模式转换套件
转换套件中包含排气格栅、软管和软管
夹(不提供,但可作为可选配件进行购
买。请参见技术数据)。