Operating and installation instructions
Table Of Contents
- Содержание
- Указания по безопасности и предупреждения
- Ваш вклад в охрану окружающей среды
- Описание вытяжки
- Описание функций
- Ввод в эксплуатацию
- Эксплуатация (автоматическая работа)
- Эксплуатация (ручной режим работы)
- Эксплуатация (автоматический и ручной режим)
- Рекомендации по экономии электроэнергии
- Чистка и уход
- Сервисная служба
- Монтаж
- Технические характеристики
- Гарантия качества товара
- Контактная информация о Miele

Монтаж
*INSTALLATION*
44
Рекомендации по прове-
дению монтажа
- Для того, чтобы можно было сво-
бодно и удобно работать под вы-
тяжкой, мы рекомендуем соблю-
дать расстояние до электрических
конфорок также не менее 650 мм.
- При выборе монтажной высоты
учитывайте рост пользователей.
Им должно быть удобно работать у
панели конфорок и управлять вы-
тяжкой.
- Учитывайте, что с увеличением
расстояния до панели конфорок
ухудшается улавливание испаре-
ний.
- Для того, чтобы испарения устра-
нялись как можно лучше, следует
помнить, что вытяжку необходимо
монтировать по центру над па-
нелью конфорок, без смещения в
сторону.
- Панель конфорок должна быть по
возможности уже, чем вытяжка.
По крайней мере, она должна
иметь с ней одинаковую ширину.
- Место монтажа должно быть легко
доступным. В случае сервисного
обслуживания должен быть обес-
печен доступ к вытяжке, а также
возможность ее демонтажа. Учи-
тывайте это, например, при разме-
щении шкафов, полок, потолочных
и декоративных элементов вблизи
вытяжки.
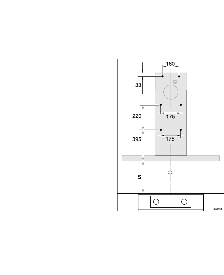
Трафарет для сверления от-
верстий при настенном мон-
таже
При сверлении отверстий примите
во внимание прилагаемый монтаж-
ный план.
Если сначала изготавливается зад-
няя стенка, в которой должны быть
отверстия для крепления, то необ-
ходимо соблюдать указанные на
плане промежутки между отвер-
стиями (шурупы 5мм).