User Installation Instructions
35
安装
______________________________________________________________________________________________________________________________________________
安装建议
- 同时您还需考虑经常使用抽油烟
机的人员身高。应该留出足够的空
间,以便他们能在炉灶旁舒适地操
作,并且能轻松触及抽油烟机的控
制键。
- 请注意,如果抽油烟机安装的位置
过高,机器将无法有效排气。针对
中国市场,建议烟机与电子灶间留
出 650 毫米间距;烟机与燃气灶
间留出 850 毫米间距。
- 抽油烟机须在上方罩住炉灶,以达
到最佳排气效果。抽油烟机应安装
在炉灶正上方,而非某一侧。
- 炉灶宽度不应大于抽油烟机,如果
可以,其宽度应小于抽油烟机。
- 安装位置必须易于触及。抽油烟机
应易于触及,需要维护时应易于拆
卸。在抽油烟机周围规划壁橱、层
架、天花板或橱柜的位置时,应考
虑到这一因素。
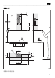
墙上安装钻孔图
请遵循随附的安装说明图纸上有
关钻孔的操作说明。
安装前在背板墙上预先钻孔时,请
参看上图中的钻孔距离(螺丝钉直
径 5 毫米)。