Instructions for use and assembly instructions

Table Of Contents
Installation
*INSTALLATION*
40
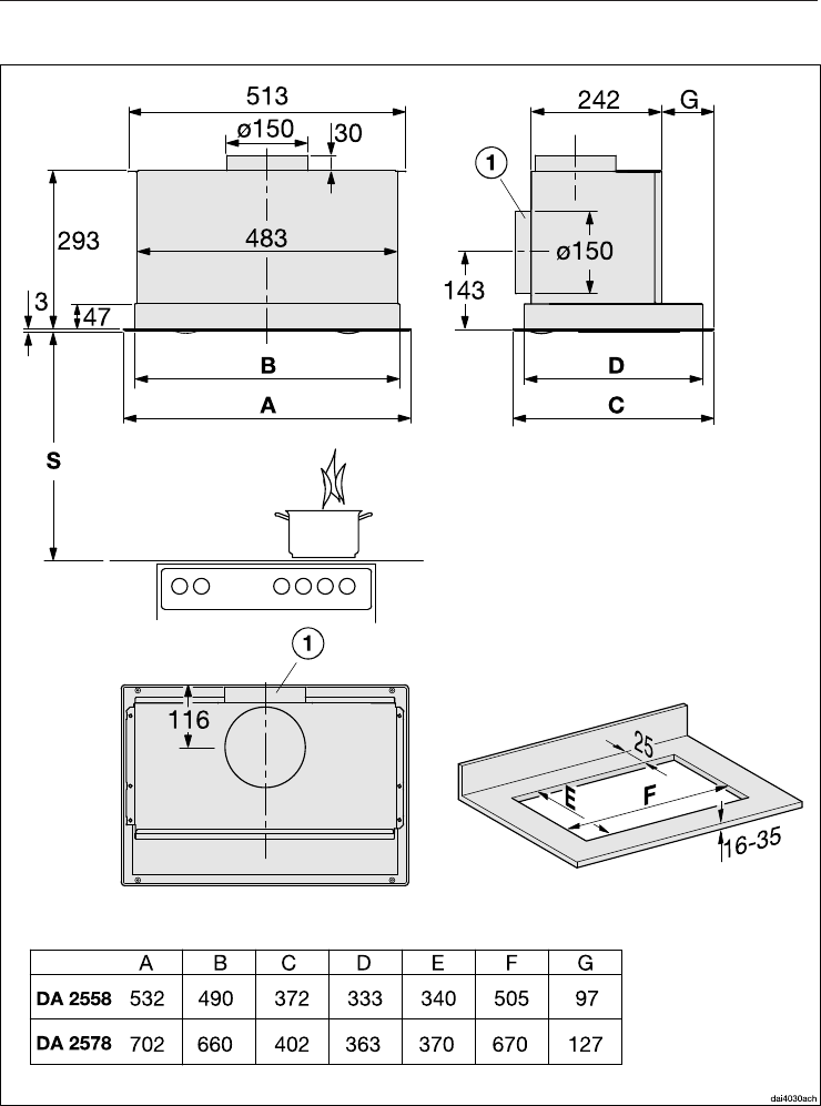
Dimensions de l'appareil
Le schéma n’est pas à l’échelle