Specifications

-
5
-
Unit: mm
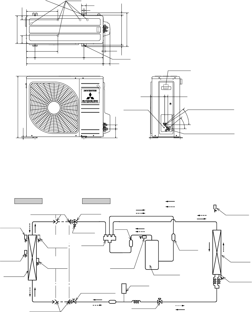
(2) Outdoor unit
Models SRC50ZHX-S, 60ZHX-S
Drain hole
Ter minal block
640
12.4
89
93 42.5
43.5
327.3
327.3
83.5
510 201
71.2
14.8 312.5 24.3
351.6
17.9
12
50.6
290
800
33.5148.4
40˚
40˚
Ground terminal
Service valve(Liquid)
Flare connection ø6.35(1/4")
Service valve(Gas)
Flare connection ø12.7(1/2")
2-15.5×12
2-R6
2.4 Piping system
Models SRK50ZHX-S, 60ZHX-S
Outdoor unitIndoor unit
Room temp.
sensor
Heat
exchanger
Flare connection
Heat
exchanger
sensor 1
Piping
(Liquid)
ø6.35
Check joint
4 way valve
Service valve (Liquid)
Flare connection
Discharge pipe
temp. sensor
Cooling cycle
Heating cycle
Outdoor air
temp. sensor
Heat
exchanger
Heat exchanger
sensor
Compressor
Capillary tube
Strainer
Strainer
Service valve
(Gas)
Electronic
expansion valve
Piping
(Gas)
ø12.7
Muffler
Humidity
sensor
Heat
exchanger
sensor 3
Receiver