Specifications

-
4
-
2.2 Range of usage & limitations
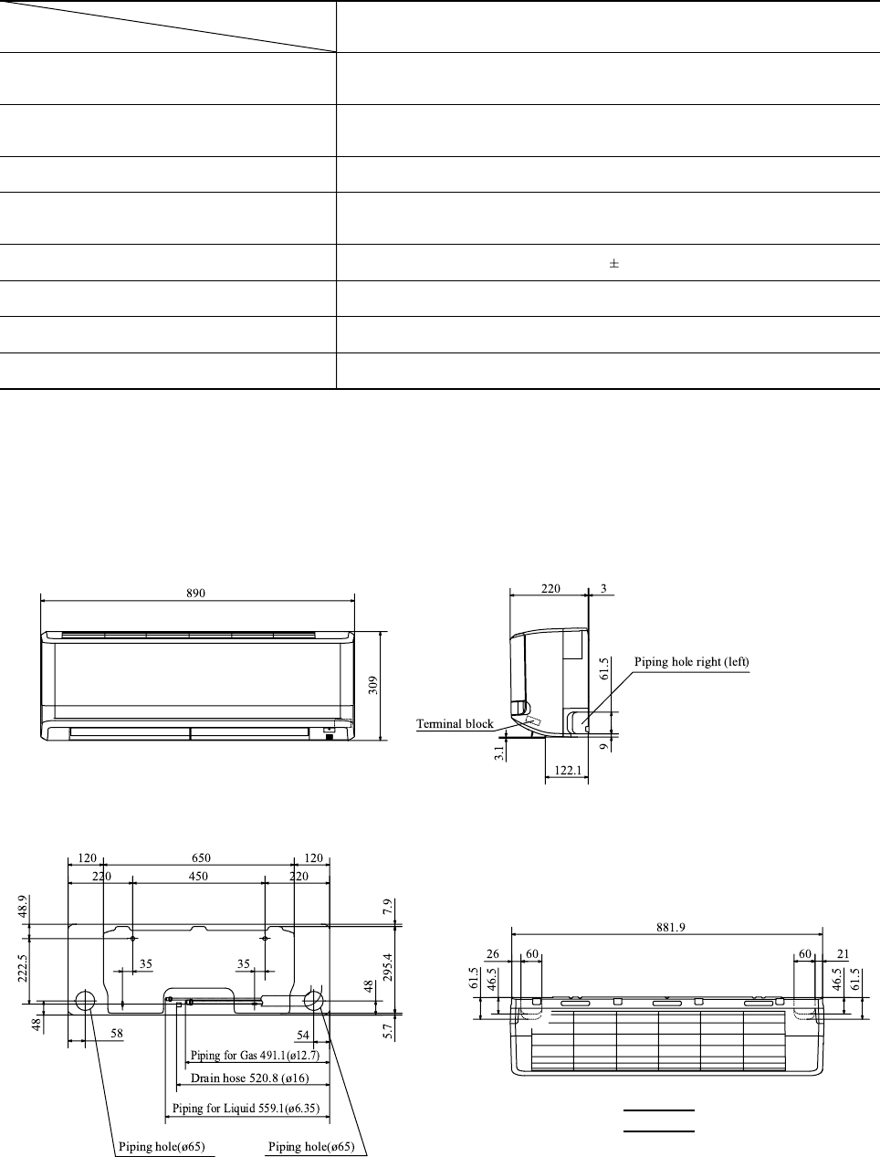
2.3 Exterior dimensions
(1) Indoor unit
Models SRK50ZHX-S, 60ZHX-S
Indoor return air temperature
(Upper, lower limits)
Refrigerant line (one way) length Max. 30m
SRK50ZHX-S, 60ZHX-S
Cooling operation : Approximately 18 to 32˚C
Heating operation : Approximately 15 to 30˚C
Cooling operation : Approximately -15 to 46˚C
Heating operation : Approximately -15 to 21˚C
Power source voltage Rating 10%
Voltage at starting Min. 85% of rating
Frequency of ON-OFF cycle
Max. 7 times/h
(Inching prevention 5 minutes)
ON and OFF interval Max. 3 minutes
Outdoor air temperature
(Upper, lower limits)
Vertical height difference between
outdoor unit and indoor unit
Max. 20m (Outdoor unit is higher)
Max. 20m (Outdoor unit is lower)
Item
Models
Unit: mm
VIEW A
A
→