Specifications

6
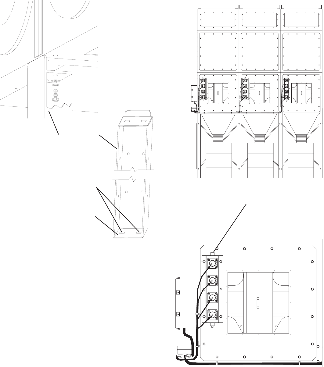
Compressed Air Installation
The compressed air inlet for the Roto-Pulse
cleaning system is at the top of the piping assembly
located on the backside of the unit (see Figure 6).
A minimum of a 3/4 inch line and plant air at a
pressure at 80 psi is required for proper operation of
the Roto-Pulse cleaning system. A single 3/4” air
line, branched to each manifold, is suffi cient to the
entire unit.
NOTE: Clean, dry, compressed air at the correct
pressure is required for the cleaning system
to operate correctly. It is recommended that
a pressure regulator and coalescing fi lter be
installed between the compressed air source and
the inlet to the dust collector.
FIGURE 5
FIGURE 6
MIDDLE LEG
1/2” DIA. HOLES
BASE PLATE
FIGURE 4
COMPRESSED AIR INLET
3/4” FEMALE NPT










