Technical data
Table Of Contents
- User Instructions for the Micromat boiler
 - Product Description
 - Technical Data
 - Delivery Consignment / Unpacking the boiler
 - Boiler location
 - Installation Clearances
 - Wall Mounting
 - Gas Connection
 - Gas Conversion
 - System Flow & Return connections
 - Condensate Connection
 - Flue / Combustion Air connection
 - Flue Systems
 - Calculating Flue Resistance
 - Ventilation requirements single appliances
 - Hydraulic System Design
 - System type 1
 - System type 2
 - System type 3
 - System type 4
 - System type 5
 - System type 6
 - System type 7
 - System type 8
 - Water Treatment
 - Soldering Flux
 - Electrical Connection
 - System Type 1
 - System Type 2
 - System Type 3
 - System Type 4
 - System Type 5
 - System Type 6
 - System Type 7
 - System Type 8
 - Commissioning The Micromat EC
 - Installation Codes
 - First Firing
 - Pop Up Menu
 - Setting DHW Temperature
 - Servicing
 - Screen Display Diagnosis of Faults
 

36
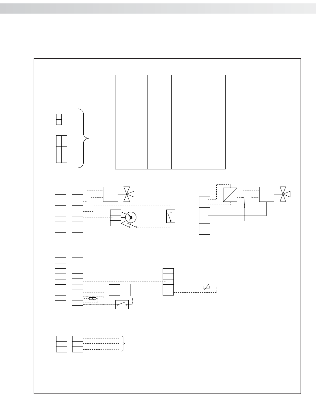
17.0 electrical
connections
Typical electrical connection schematic to suit system type 2
Installation code
Outside sensor
installed. Room stat &
time switch installed.
No outside sensor.
Room stat & time switch
installed.
Outside sensor
installed. RE2132
modulating room unit
installed.
No outside sensor.
RE2132 modulating
room unit installed.
Install only if direct-on-boiler weather
compensated flow temperature are
required.
Install only one method of external time and
room temperature control. If room and stat
time switch are required, then do not install
RE2132 room unit and vice versa.
*
**
X3
10
5
6
1
21
Not Used
upper terminal strip
L1
PE
N
L1
N
L2
Supply
230V
Room Thermostat
And Time Switch
**
3
4
R1
R2
R3
1 2
O S
4 3 2 5 1
* Outside
Air Sensor
RE2132
Modulating
Room unit
**
QAW44
optional
Remote Sensor
GND
PMW
+24V
1
2
5
6
2 pin plug on X4
L1
N
L1
N
6
23
3
20
lower terminal strip
Install only one method of HWS temperature
control. The use of an HWS sensor will allow
no time control over hot water production.
If timed hot water control is required then do
not install an HWS sensor, but install only
 timeswitch & cylinder thermostat.
***
HWS
sensor
Cylinder
thermostat
***
HWS divertor valve
spring return type
L1
N
L2
L1
N
L1
N
Alternative connection
for floating actuator
closed
open
X16
On LPG installations where an
additional gas safety shut off
valve is required, connect to
L1 and N terminals on left side
of lower terminal strip.
Description










