Service manual

Page 19 Mealstream Ovens 32Z3387 Issue 2
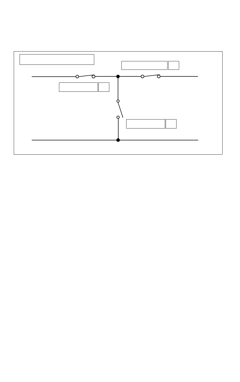
1. Primary Interlock [ 11 , Bottom left-hand ] and
Secondary Interlock [ 17 , Bottom right-hand ] Switches.
Operate simultaneously.
The Primary switch or Secondary switch will cut off the microwave emissions from
the oven when the door is opened by breaking the mains supply circuit to the
transformers.
2. Monitor [ 14 ,Top left-hand Side ]
The Monitor switch will produce a short circuit across the mains supply if the
Primary interlock switch is faulty, thus blowing the microwave fuse and rendering
the oven inoperative.
The Secondary interlock switch will cut off the microwave emission if the other
switches have failed.
Note:
If operation of the Monitor switch has caused the Microwave Fuse to blow, the
Primary and Monitor microswitches must be changed, as they may have been
damaged by the high short-circuit currents involved.
Door interlock operation
The door on the oven is monitored by three microswitches. These are used in the conventional
“Primary, Secondary and Monitor” switch arrangement shown below.
The switches operate as follows:
Door Interlock Arrangement
Power In
Power Out
L
N
14 Monitor switch
11
Primary switch
17 Secondary switch
The diagram shows the microswitches in door closed position










