Specification Sheet

INSTALLATION: It is important that all leveling
feet are completely touching the floor
and level for the door system to work properly.
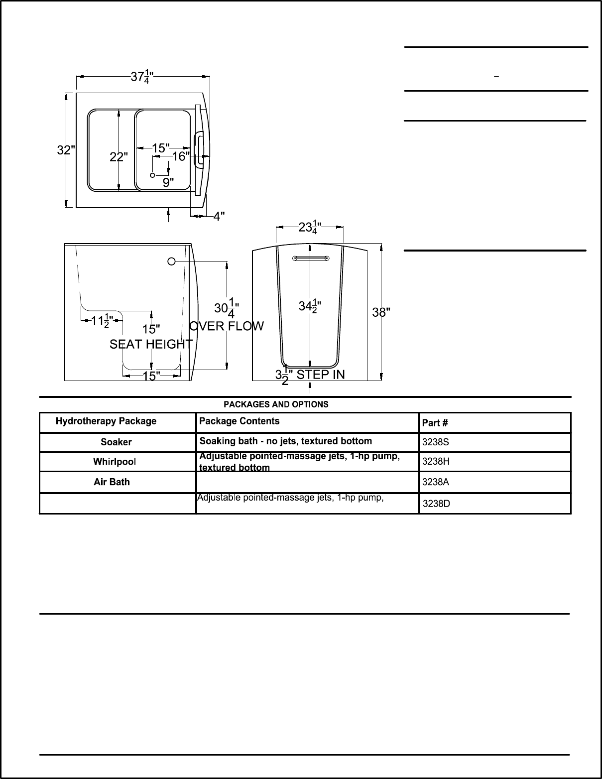
3238
32" x 37
1
4
" x 38"

equipment.


changed.


voided.

without notice.

notice.

publication date shown below.
OPTIONS
Colors Available - White
Quick Ship - reduces lead time - call for availability
Inline Heater with Pump - Whirlpool or Whirlpool and Air Bath
Lift & Turn Drain Kit -Chrome,Brushed Nickel, White
Color Match Jets.
Air jets, Air blower, Textured bottom
IMPORTANT INFORMATION
Whirlpool and Air
Air jets,
Air blower, textured bottom
ELECTRICAL SPECIFICATIONS:
Required Electrical Service 110 Volt
Air Bath or Whirlpool 1-15 amp GFCI
Whirlpool with Inline Heater 1-20 amp GFCI
Whirlpool and Air 1-20 amp GFCI
Soaker
GENERAL SPECIFICATIONS:
Material Acrylic
Plumbed Weight : 175lbs / 80kg
Soaker Weight :145lbs / 66kg
Average Fill: 45 gal to above jet level


Summary of content (1 pages)