Data Sheet

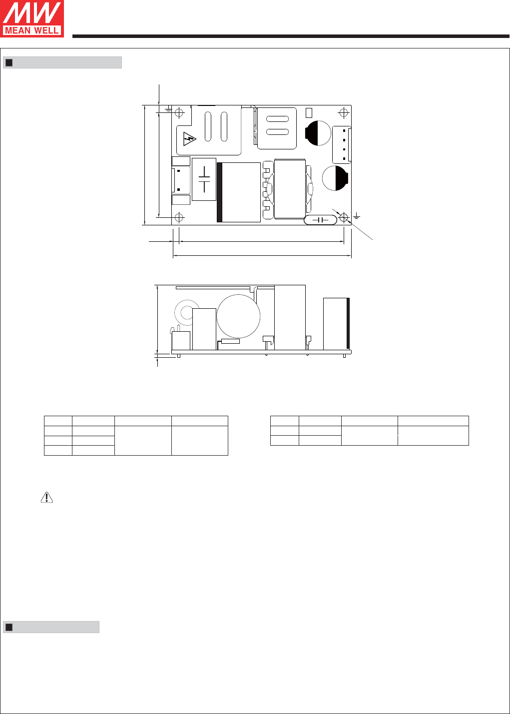
Mechanical Specification
AC Input Connector (CN1) : JST B3P-VH or equivalent
Pin No.
1
2
3
Assignment
AC/L
No Pin
AC/N
Mating Housing
JST VHR JST SVH-21T-P1.1
or equivalent or equivalent
Terminal
DC Output Connector (CN2) : JST B4P-VH or equivalent
Pin No.
1,2
3,4
Assignment
-V
+V
Mating Housing
JST VHR
or equivalent
Terminal
JST SVH-21T-P1.1
or equivalent
Installation Manual
Please refer to : http://www.meanwell.com/manual.html
28
3 max.
120W 3"×2" Reliable Green Medical Power Supply
RPS-120S series
1
2
3
4
CN100
1
2
3
CN1
T3.15A
/250V
FS2
FS1
50.8
44.45
3.175
3.1753.175
69.9
76.2
4- 3.3ψ
C5
T1
HS1
C100
C105
C119
C1
T3.15A/250V
SVR1
1.HS1 must have safety isolation distance
with system case.
※Note :
1.RPS-120S model delivers EMI Class B for both conducted emission and radiated emission for the power supply,
when configured into Class (with FG)Ⅰ system.
2.RPS-120S model delivers EMI Class B conducted emission and Class A radiated emission with King Core K5B RC (12*15*7)
in output cable for the power supply when configured into Class (no FG) system.Ⅱ
File Name:RPS-120S-SPEC 2019-05-27
Unit:mm




