Instructions / Assembly

Expansion Joint Recommendations
installation of panels over 12’ long is not recommended
PANEL SIZE 4X8 4X9 4X10 4X12
S
p
a
c
e
a
r
o
u
n
d
r
i
v
e
t
s
1
/
8
”
1
/
8
”
3
/
1
6
”
3
/
1
6
”
If using a power saw, ensure that the blade enters the front (finished ) side of the panel to avoid damage.
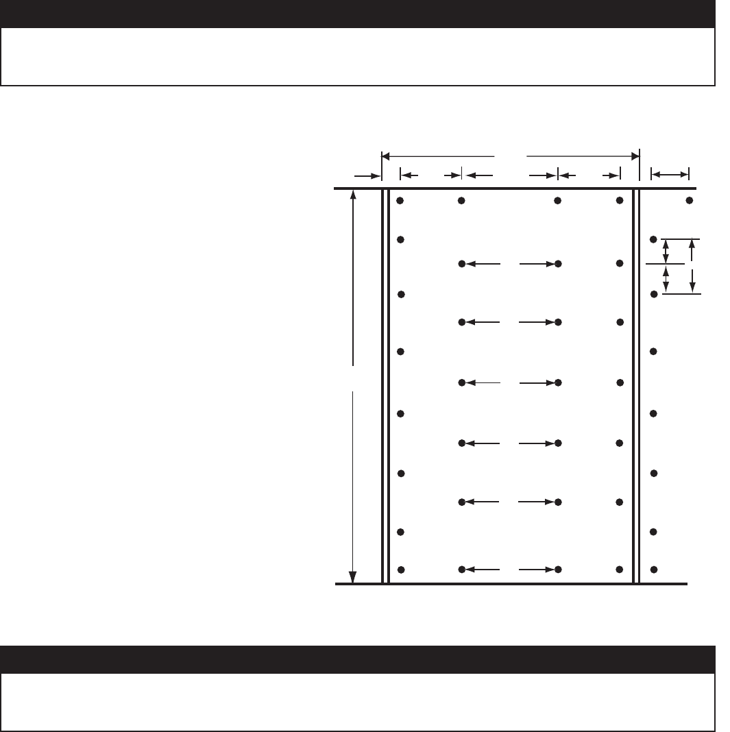
Using Fasteners
1. When using rivets, panels should be
predrilled allowing for the spacing in the
above chart. Holes slightly larger than the
fasteners should be drilled into the
substrate through the pre-drilled holes in
the panel. Do this prior to adhesive
application.
2. Apply a silicone sealant prior to inserting
fasteners.
3. Fasten panel first in the center and work
outward.
Fasteners should be used 16” on center
vertically and horizontally. Fasteners
on panel edges should be at least 1” to
1 1/2” from the panel edge when using
one piece fasteners. Using two piece
moldings, put perimeter holes 1 1/2” to
2” away from the panel edge.
96"
15"
48"
16"
8"
8"
15"
16"
15"
1"
p
o
n
g
q
a
b
c
d
e
f
h
r
i
s
j
t
k
u
l
v
w
m
FRP Panel Installation Steps
Step 1: Trim panel to fit and create over-sized pilot holes.
Step 2: Cut out any fixture openings.
Expansion Joint Recommendations
installation of panels over 12’ long is not recommended
PANEL SIZE 4X8 4X9 4X10 4X12
S
p
a
c
e
b
e
t
w
e
e
n
p
a
n
e
l
s
a
n
d
w
a
l
l
f
i
x
t
u
r
e
s
1
/
8
”
1
/
8
”
3
/
1
6
”
3
/
1
6
”
Step 3: Start at an inside corner of the room. Mark a plumb line 48” + expansion distance (see Step 5 chart)
from the corner. The initial panel should be set true with plumb line.
Step 4: Apply FRP adhesive to the back side of the panel using the adhesive manufacturer’s
recommendations. Failure to apply adhesive properly may cause de-lamination.
Note: Initiate installation by alphabetic sequence