User Manual

Sonoma Smoker By Lynx™ Care & Use P/N 35948 Page 14
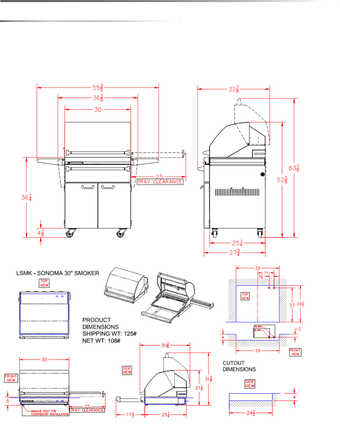
CUTOUT SPECIFICATIONS
The guides, measurements and dimensions detailed below are designated to assist you with planning your outdoor kitchen.
NOTE: Due to connuing product innovaon, specicaons are subject to change without noce.
IMPORTANT: Please reference this Care & Use / Installaon manual for details on gas plumbing requirements, electrical
specicaons and the proper installaon of your Lynx outdoor kitchen equipment. This manual can be downloaded from the Lynx
website at www.lynxgrills.com