Sedona Grills Use and Care

28
|
SEDONA CARE & USE/INSTALLATION
Place a dust cap on the cylinder valve outlet whenever the
cylinder is not in use. Only install the type of dust cap on
the cylinder valve outlet that is provided with the cylinder
valve. Other types of caps or plugs may result in leakage of
propane.
LP Connections
Make sure the LP cylinder valve is fully closed. It is possible
for the valve to be open without releasing gas but, as soon
as you start connecting the regulator, gas will leak from the
connection.
Insert the regulator inlet into the cylinder valve and turn the
black coupler clockwise until the coupler is hand tight. Do
not over-tighten this connection.
To disconnect the coupler, first make sure the main cylin-
der valve is turned off. Grasp the coupler and turn counter
clockwise. The inlet will then disengage.
Always leak-test the connection after refilling or exchanging
LP cylinders. (See INDEX: “Leak Test” for further details.)
GAS LINE PURGING
You should purge the gas line of air before attempting to
light the grill.
Make sure all grill controls are in the “OFF” position.
Slowly turn on the main gas supply.
Push in the left burner knob and confirm that the igniter is
sparking. It is furthest from the fuel source and will com-
pletely purge the lines. It will take several seconds for the
burner to light.
Hold the knob ON for about 20 seconds to allow the air in
the system to purge and the burner to light
Wait at least 5 minutes after shutting off the control before
attempting to light the burners.
GAS CONVERSION KITS
Gas conversion kits are available from Lynx Grills the grill to
operate on either Natural gas (SEDNGK) or LPG (SEDLPK).
These kits should be installed by a qualified technician.
The kits come with complete installation instructions. These
instructions should be read completely and fully under-
stood before installing the conversion kit.
GAS CONNECTIONS... continued
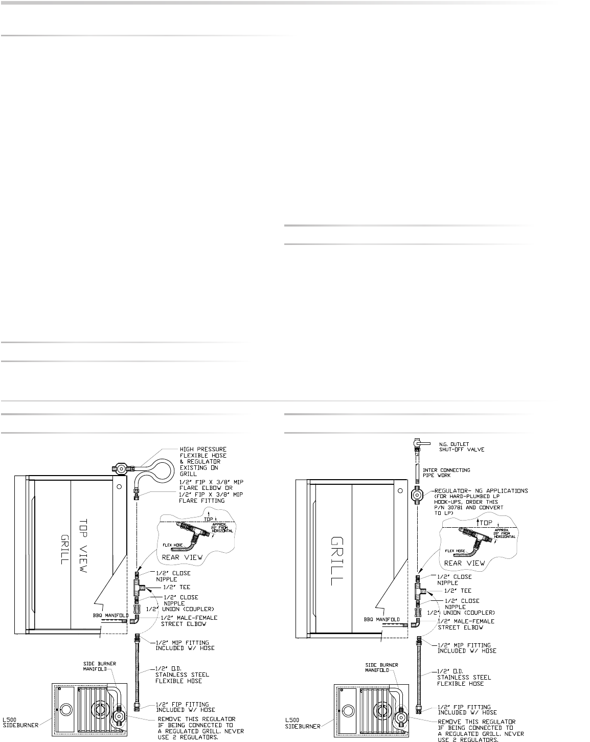
L.P. GAS HOOK-UP
NATURAL GAS HOOK-UP
LP BULK-TANK HOOK-UP
LP GAS HOOK UP NATURAL GAS/LP BULK-TANK HOOK UP










