Indoor Fireplace User Manual

NOTE: DIAGRAMS & ILLUSTRATIONS NOT TO SCALE.
6
Figure 10
IMPORTANT: UNDER NO CIRCUMSTANCES
CAN THE FIREPLACE TOP SPACERS (
FIGURE
10
) BE REMOVED OR MODIFIED, NOR MAY
YOU NOTCH THE HEADER TO FIT AROUND OR
BE INSTALLED LOWER THAN THE SPACERS.
THE HEADER MAY BE IN DIRECT CONTACT
WITH THE TOP SPACERS BUT MAY NOT BE
SUPPORTED BY THEM.
Note: The framed depth, 29
³⁄₄
" (755 mm)
from a framed wall, must always be measured
from a finished surface. If a wall covering such
as drywall is to be attached to the rear wall,
then the framed depth must be measured from
the drywall surface. It is important that this
dimension be exact.
If the appliance is to be elevated above floor
level, a solid continuous platform must be
constructed.
The header may rest on the top metal spacers,
but must not be notched to fit around them.
Consult all local codes.
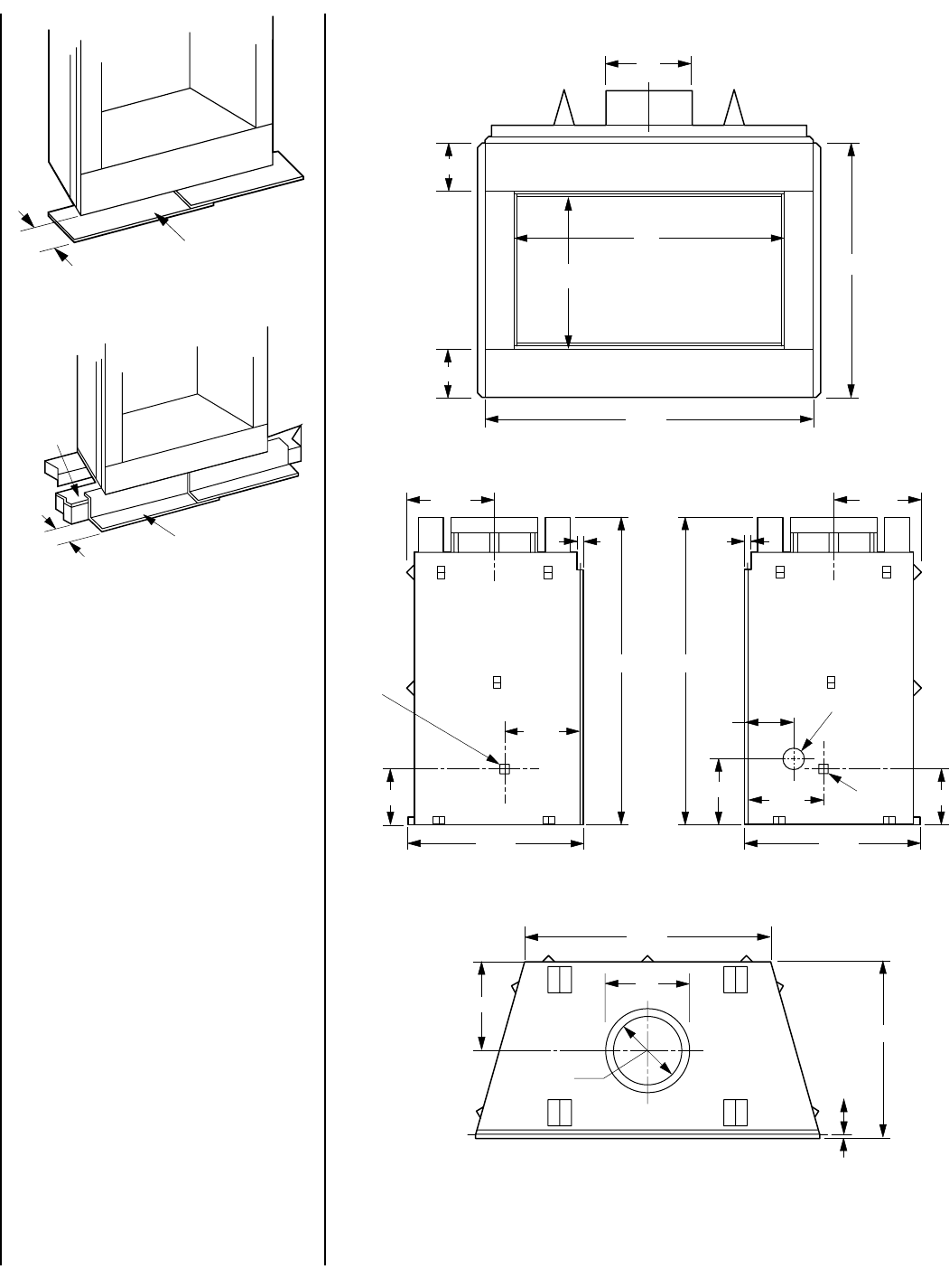
Metal Safety Strips
with 1" Overlap
2"
Special “Z” Metal Safety
Strips with 1" Overlap
2"
Platform
Figure 8
Figure 9
59 ³⁄₈"
15"
8 ⁹⁄₁₆"
45 ¹⁄₈"
28"
48"
8 ⁹⁄₁₆"
Front
14 ¹₄"
13 ³⁄₄"
10"
30 ³⁄₈"
53 ¹⁄₄"
Gas Line
Access
1"
Right Side
Combustion
Air Access
11 ⁵⁄₈"
11 ¹⁄₈"
14 ¹₄"
13 ³⁄₄"
10"
30 ³⁄₈"
53 ¹⁄₄"
Gas
Line
Access
1"
Left Side
44 ¹⁄₂"
13 ¹₄"
15"
12 ¹⁄₂"
6"
29 ³⁄₈"
⁵⁄₈"
Top View
FIREPLACE SPECIFICATIONS










