Indoor Fireplace User Manual

NOTE: DIAGRAMS & ILLUSTRATIONS NOT TO SCALE.
13
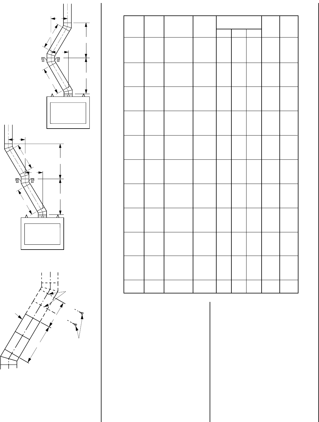
Figure 36
A
1
C
1
B
1
B
2
C
2
A
2
A
1
C
1
B
1
B
2
C
2
A
2
Figure 37
Chimney
Section
Joints
No. 8 x 1/2" SMS
Screws Required At
Every Joint Past 6'
No Screws Required In
Joints For First 6' of Offset
4'
6'
FTF13 OFFSET ELEVATION CHART
A B FTF13-ES30 Number of FTF13 A B
Offset Height Offset/Return FTF13-S4 Chimney Sections Offset Height
(Inches) (Inches) Elbow Set Stabilizer 12" 18" 36" (mm) (mm)
415³⁄₄ 1 0 0 0 0 102 400
924¹⁄₂ 1 0 1 0 0 229 622
12 29 ³⁄₄ 1 0 0 1 0 305 756
14 ¹⁄₄ 33 ¹⁄₂ 1 0 2 0 0 362 851
17 ¹⁄₄ 38 ¹⁄₂ 1 0 1 1 0 438 978
20 ¹⁄₄ 43 ³⁄₄ 1 0 0 2 0 514 1111
21 45 ¹⁄₄ 1 0 0 0 1 533 1149
22 ¹⁄₄ 47 ¹⁄₂ 1 0 2 1 0 565 1207
25 ¹⁄₄ 52 ¹⁄₂ 1 0 1 2 0 641 1334
26 ¹⁄₄ 54 ¹⁄₄ 1 0 1 0 1 667 1378
28 ¹⁄₄ 57 ³⁄₄ 1 0 0 3 0 718 1467
29 ¹⁄₄ 59 ¹⁄₄ 1 0 0 1 1 743 1505
31 ¹⁄₄ 63 1 0 2 0 1 794 1600
32 ¹⁄₂ 65 1 0 4 1 0 826 1651
34 ¹⁄₄ 68 ¹⁄₄ 1 0 1 1 1 870 1734
36 ¹⁄₄ 71 ³⁄₄ 1 0 3 0 1 921 1822
37 ¹⁄₄ 73 ¹⁄₄ 1 0 0 2 1 946 1861
38 ¹⁄₄ 75 1 0 0 0 2 972 1905
39 ¹⁄₄ 77 1 0 2 1 1 997 1956
41 ¹⁄₂ 80 ¹⁄₂ 1 0 1 4 0 1054 2045
43 ¹⁄₄ 83 ³⁄₄ 1 0 1 0 2 1099 2127
44 ¹⁄₂ 85 ³⁄₄ 1 0 3 1 1 1130 2178
45 ¹⁄₄ 87 ¹⁄₂ 1 0 0 3 1 1149 2223
46 ¹⁄₄ 89 1 0 0 1 2 1175 2261
48 ¹⁄₄ 91 ¹⁄₂ 1 0 2 0 2 1226 2324
49 ¹⁄₂ 94 ¹⁄₂ 1 0 1 5 0 1257 2400
51 ¹⁄₄ 97 ³⁄₄ 1 0 1 1 2 1302 2483
54 ¹⁄₄ 103 1 0 0 2 2 1378 2616
55 ¹⁄₄ 104 ¹⁄₂ 1 0 0 0 3 1403 2654
56 ¹⁄₂ 106 ¹⁄₂ 1 0 2 1 2 1435 2705
59 ¹⁄₂ 111 ³⁄₄ 1 0 1 2 2 1511 2838
61 ³⁄₄ 116 1 1 1 0 3 1568 2946
64 ³⁄₄ 121 ¹⁄₄ 1 1 0 1 3 1645 3080
67 124 ³⁄₄ 1 1 2 0 3 1702 3169
69 127 ³⁄₄ 1 1 1 3 2 1753 3245
70 130 1 1 1 1 3 1778 3302
73 135 ¹⁄₄ 1 1 0 2 3 1854 3435
75 138 ³⁄₄ 1 1 2 1 3 1905 3524
79 145 ¹⁄₂ 1 1 1 0 4 2007 3696
80 ¹⁄₄ 147 ¹⁄₂ 1 1 3 1 3 2038 3747
82 150 ³⁄₄ 1 1 0 1 4 2083 3829
87 159 ¹⁄₂ 1 1 1 1 4 2210 4051
INSTALLING OFFSETS
First, review the Offset Elevation Chart and see
Figure 39
for reference.
Step 1. Determine the offset distance where
chimney is to pass through the first ceiling-
dimension “A.” To find this point on your ceil-
ing, first determine the center point for a verti-
cal chimney following the instructions for ver-
tical installation.
Measure height to the ceiling from the top of
fireplace-dimension “B.” Use the appropriate
Offset Elevation Chart to find dimension “A.”
Mark point where you will drive your nail to
show the center point for your offset ceiling cut.
Step 2. Proceed by using the Straight Up Instal-
lation Instructions for cutting and framing ceil-
ing and roof openings.










