Yankee Bay Pellet Insert Instruction Manual

Optional Equipment 39
Travis Industries 4050509 100-01145
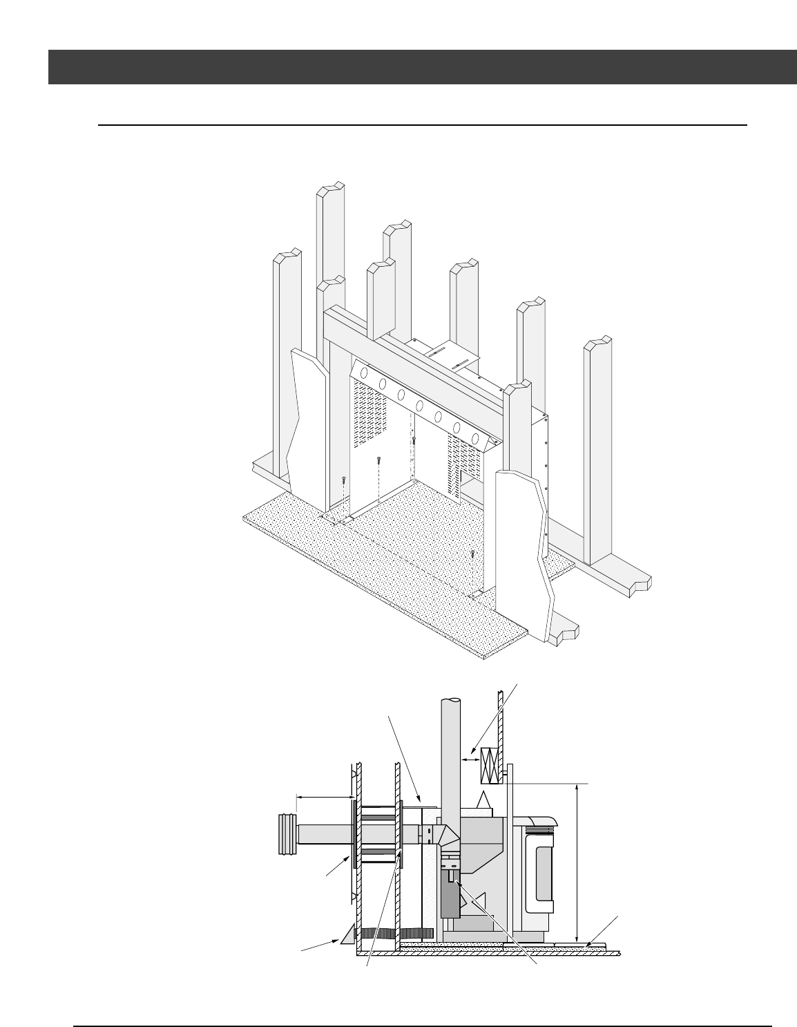
ZC Kit (99200149)
The optional zc kit allows this insert to be directly into the framing of a house or mobile home. See the
kit for installation details.
Floor Protection
Wall Thimble (note 3” clearance between
vent and combustibles)
12”
Minimum
Enclosure Height
(measure from top of
floor protection)
House Shield
(prevents soot discoloration)
HIGHLY RECOMMENDED
Floor Protection
Rear Vent Shield (used only on inserts
venting directly to the rear - note how it is
slid back until it contacts the wall thimble)
Vent Latch (used to connect and
disconnect the vent )
Vent Clearances (make sure
all vent maintains 3” clearance
to any combustible)
Outside Air
Connection
(recommended)










