Owner manual

Installation & Operation Manual
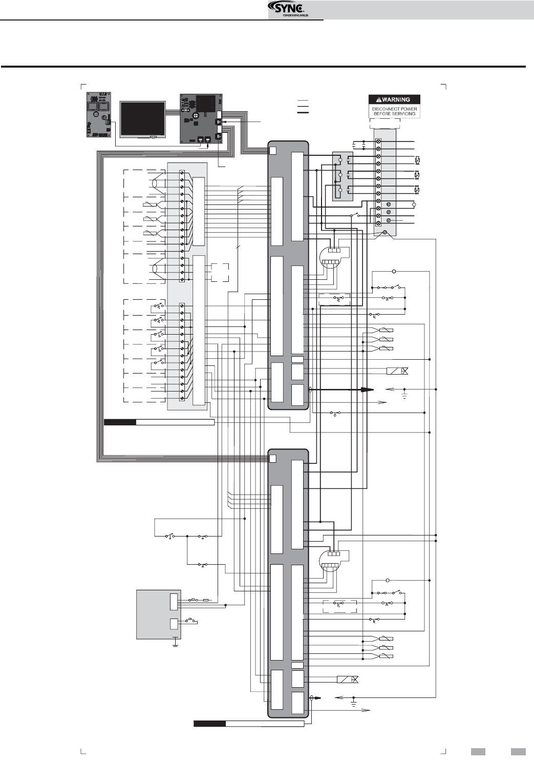
12 Diagrams (continued)
Figure 12-3 Wiring Diagram
BOX DEPICTS
OPTIONAL ITEMS
O
UTL
E
T
SENSOR
N
otes:
1. All w
iring
m
u
st be ins
talled
in
acc
ordance
w
ith: local, state, provinc
ial and
na
tional
code
requi
r
eme
nts pe
r ei
the
r N
.E.C
. in
U
SA
or C
.S.A. in C
anada
.
2. If any
origin
al equipme
nt w
ire as
supplied
w
ith the
applia
nce
m
us
t be replaced
, it m
us
t
be repla
ced
w
ith w
ire having
sam
e w
ire gaug
e (AW
G
) an
d rated for a
m
inim
um
of 105
°C
. Excep
tion
s:
R
epla
cem
en
t high
vol
tag
e spa
rk lead
and
ribbon
cables
m
us
t be pu
rchased
from
the fac
tory.
U
se of a
non
-app
rove
d spa
rk lead
or ribbon
cabl
es can
le
ad
to ope
rational
problems
w
hich
could
res
ult in
non
-repa
irable
da
m
age
to the integ
rated con
troller or othe
r co
m
ponen
ts.
3. Ac
tual
connec
tor
block
loca
tions
m
ay
va
ry fro
m
those
sh
ow
n on diag
ram
s. R
efer to ac
tual
com
ponen
ts for prope
r connec
tor blo
ck
loca
tions
w
hen
us
ing
diag
rams
to t
roubleshoo
t uni
t.
CN3
CN2
R
S485
SHIELD
SHIELD
CASCAD
E
TANK
SENSOR
OU
TDOOR
SENSOR
SYS
TEM
SENSOR
EXT
ERNAL
CONTROL
R
S485
SHIELD
SHI
ELD
M
OD BUS
C
N3-16
C
N3-15
CN3-14
C
N3-13
CN3-12
C
N3-11
CN3-1
0
CN3-9
C
N3-
8
C
N3-7
CN3
-6
C
N3-
5
CN
3-4
CN3
-3
C
N3-
2
CN3-1
ENABLE
TANK
THERM
OS
TAT
TANK
THERM
OS
TAT
HEX
1
FLO
W
SWITCH
HEX 2
FLOW
S
W
I
TCH
L
O
UVER
PROVING
RUNTIME
CONTACT
S
ALARM
CONTACTS
CN2-1
CN2-2
CN2-3
CN2
-4
CN2-5
C
N
2-6
CN2
-7
C
N2-8
CN2-9
CN2
-10
CN2-11
CN2-12
CN2-13
CN2-14
CN4
CN1
C
N1-10
CN1-2
CN1-9
CN1-11
C
N1-
3
CN1-4
CN1
-5
C
N
1-6
C
N
1-1
3
CN1-14
CN1-12
CN1-1
5
C
N
1-16
CN1-8
CN1-7
CONNECTION BOARD
JUNCTION
BOX
RELAY
BOAR
D
K1
K2
K3
X8
MOD BUS
KIT
X4
X6-6
X6-
1
LO
W
WATER
CUTO
FF
BOARD
J3-1
J3-2
J
3-3
J
3-4
J3-5
J3-6
J
2-1
J
2-2
J
2-3
X6-2
X6-9
X6-
10
B
LOWER
G
R
13
2
W
1
245
3
X3-
2
X3-2
X3-4
X3-1
X3-3
X3-4
X3-1
X3-3
X6-9
X6-10
J3-1
TEST
SWI
TCH
PROBE
X
2-2
X
2-1
X1-7
X2-
2
X2-1
X1-7
X1-4
X1-2
X1-3
X1-6
X1-5
X1-8
X1-
1
X5-5
X
5-13
X5-6
X5-12
X5-7
X5-14
X5-3
X
5-8
X5-1
X5-
2
X5-9
X1-2
X1-4
X1-3
X1-6
X5-7
X5-14
X5-3
X5-8
X
5-1
X5-2
X5-9
X4
X8
ON/OFF SWITCH
G
ND
GND
G
ND
G
ND
SYSTE
M
PUMP
BOI
LER
1
BOILER 2
L
N
1
20V SUPPLY
HW PUMP
R
ELA
Y
INLET
SENSOR
FLUE
SEN
SOR
IN
L
ET
SENSOR
O
UTLET
SENSOR
FLUE
SE
NSO
R
X1-2
BLOCKED
D
R
AIN
HI-LIM
I
T
GA
S
VALV
E
GAS
VAL
VE
SPA
R
K
R
O
D
G
C
AUTIO
N
H
IG
H
VO
LTAGE
SPA
R
K LEAD
BLO
WER
13
2
1
2
45
3
X
5-5
X5-13
X
5-6
X5-12
X1-8
X1-1
X1-5
G
R
W
SPARK
ROD
G
CAUTION
HIGH VOLTAGE SPARK LEAD
120 VAC
LOW VOLTAGE
HIGH VOLTAGE
CONTROL
MODULE 1
CONTROL
MODULE 2
CM 1 PC INTERFACE
PC INTERFACE
X3
X5
RESET
X
5-4
X5-
10
X5-4
X
5-10
APS
F
LAP VALVE
FLAM
E R
O
D
FLAME RO
D
W
IR
IN
G
D
IAG
R
AM
LBL20
045
R
EV K
4 CONDUCTORS
GY
W
T
BR
O
R
PK
R
D
RD
PR
PK
GY
W
T
OR/BK
RD
PR
R
D
PR
PR
OR/
BK
BK
O
R
OR/
BK
BR
PR
RD
PR
RD
RD
/W
Y
BK
Y/B
K
W
/BK
R
D
/BK
BK/
R
D
PK
PR/BK
BL/BK
GR/BK
OR/BK
B
K
W
T/BK
RD
RD
GR
BK
W
G
Y
B
R
P
R
W/RD
Y
BK
Y
W
RD
B
K
PR
BL
GY
O
R
BK
W
T
R
GR
W
BK
Y
PR
BR
PR
P
R
BR
B
R
O
R
OR
+
-
10VD
C
CM 2 PC
INTERFACE
CN1-1
PK
AUTO RESET LIMIT
H
I-
LIMIT
APS
F
LAP
VALVE
AUT
O
RESET L
IM
I
T
X6-8
X
6-8
X6-7
LOUVER
CONTACTS
R1
R2
LOU
VER
X
6-5
X6-5
ALARM
CONTACTS
LOW GAS
PRESSURE SW
I
TCH
HIG
H GAS
P
RESSURE 1
HIGH
GAS
PRESS
URE 2
LOU
VER
RELAY 2
L
O
UVER
RELAY 1
L
O
UVER
RELAY 1
BL
BL
O
-TEMP HEX SW
O-T
EMP HEX SW
65