Owner manual

64
Installation & Operation Manual
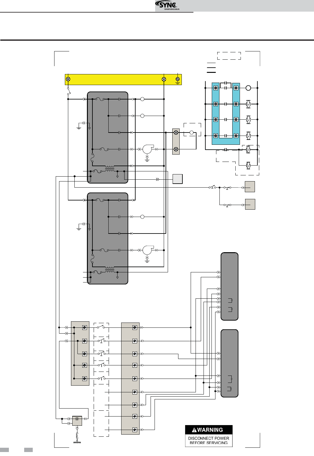
12 Diagrams
Figure 12-2 Ladder Diagram_Part 2
BOX DEPICTS
OPTIONAL ITEMS
120 VAC
24 VAC
120VAC
TERMINAL STRIP
120V SUPPLY "L"
ON / OFF
SWITCH
X1-6
BOILER PUMP
RELAY
DHW PUMP
RELAY
SYSTEM PUMP
RELAY
BLOWER
RELAY
X1-4
X1-2
X1-1
12
3
BLOWER
X1-5
X6-8
X6-3
F5
X5-7
X6-7
NEUTRAL
TERMINAL STRIP
120V SUPPLY "N"
JUNCTION
BOX
X1-8
CONNECTION
BOARD
5A
F4
3.5A
F2
3.5A
F3
1.25A
CONTROL MODULE 1
GROUND
JUNCTION BOX
120 VAC
LOW VOLTAGE
HIGH VOLTAGE
5
9
X6-2
NOTES:
1. Where possible, switches are shown without utilities (gas, water or
electricity) connected to the unit. As such, actual switch states may
vary from those shown on diagrams depending upon whether utilities
are connected or a fault condition is present.
2. See wiring diagram for additional notes.
BOILER
PUMP
BOILER
PUMP
HEX 1
BOILER PUMP
RELAY
SYSTEM PUMP
RELAY
HEX 1
BOILER PUMP
CONTACTS
HEX 2
BOILER PUMP
CONTACTS
SYSTEM
PUMP
CONTACTS
L1
N
120 VAC
24 VAC
ON / OFF
SWITCH
X1-6
BOILER PUMP
RELAY
DHW PUMP
RELAY
SYSTEM PUMP
RELAY
BLOWER
RELAY
X1-4
X1-2
X1-1
12
3
BLOWER
X6-8
F5
X5-7
X6-7
JUNCTION
BOX
X1-8
5A
F4
3.5A
F2
3.5A
F3
1.25A
CONTROL MODULE 2
X6-2
HEX 2
BOILER PUMP
RELAY
JUNCTION BOX
LWCO
J3-2
7
11
13
LWCO
J3-4
LOUVER
PROVING
HEX 1
FLOW
SWITCH
HEX 2
FLOW SWITCH
HW
THERMOSTAT
ENABLE
CONNECTION
BOARD
CONTROL
MODULE 1
X6-10
CONTROL
MODULE 2
X6-9
X6-1
X6-6
X6-10
X6-9
LADDER DIAGRAM
LBL20046 REV F
LOW GAS
PRESSURE
SWITCH
CONTROL
MODULE 2
X6-5
CONTROL
MODULE 1
X6-5
DHW PUMP
RELAY
(FIELD SUPPLIED)
DHW
PUMP
DHW
PUMP
DHW
PUMP
CONTACTS
(FIELD SUPPLIED)
X1-3
X1-3
J3-5
J3-6
RUN TIME
CONTACTS
RUN TIME
CONTACTS
ALARM
CONTACTS
X3-2
X3-4
X3-1
X3-3
X3-2
X3-4
X3-1
X3-3
3
JUNCTION BOX
HIGH GAS
PRESSURE
SWITCH 1
HIGH GAS
PRESSURE
SWITCH 2
CN1-4
CN1-12
CN1-13
6
10
8
12
14
4
3
1
2
CN1-7
CN1-8
CN1-10
CN1-15
CN1-11
CN1-3
CN1-6
CN1-5
CN1-6
TEST SWITCH
PROBE
J3-3
LOUVER
CONTACTS
SYSTEM
PUMP
LOUVER
MOTOR