Pre-Delivery/Install Checklist
Table Of Contents
x Page x x
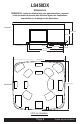
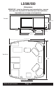
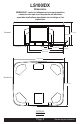
LS300 PLUS
Dimensions
REMARQUE : toutes les dimensions sont approximatives ; mesurez
votre spa avant de prendre des décisions ayant des implications
importantes sur le design ou les trajectoires.
Page 7 Guide de pré-livraison
CÔTÉ DU
PANNEAU
Vue du fond
Vue avant
LS300
60” (152 cm)
66” (168 cm)
1”
(2.5 cm)
23” (58 cm)
ELECTRICAL
DRAIN
31” (79 cm)
98” (249 cm)
67” (170 cm)
33” (84 cm)
3.5”
(9 cm)
30” (76 cm)
72” (183 cm)