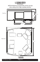
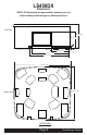
Pre-Delivery/Install Checklist

Pre-Delivery Guide
Please take the time to read this booklet carefully, as it will provide you with the information you will need to ensure
the safe, secure, and timely installation of your new spa. The following sections are guidelines on how to prepare for
delivery and set-up of your new spa. Specifically covered are site selection, delivery access, ground preparation, and
electrical requirements.
Remember to carefully review the Owners Manual that accompanies your spa, The Owner's Manual can be found
in the Owners Package.
Watkins Wellness™ reserves the right to change features, specifications, and design without notification and without
incurring any obligation.
DATE PURCHASED: _________________________________________________________________
In most cities and counties, permits will be required for the installation of electrical circuits or the construction of
exterior surfaces (decks and gazebos). In addition, some communities have adopted residential barrier codes which
may require fencing and/or self-closing gates on the property to prevent unsupervised access to a pool (or spa) by
children under 5 years of age. Your spa is equipped with a locking cover that meets the ASTM F1346-91 Standard
for Safety Covers and as a result, is usually exempt from most barrier requirements. As a general practice, your local
Building Department will inform you of any applicable barrier requirements at the time a permit is obtained for the
installation of an electrical circuit.
For Customer Service, please call (888) 961-7727
Congratulations on your decision to purchase a Lifesmart spa.
Welcome to the growing family of Lifesmart spa owners!

Summary of content (24 pages)