Pre-Delivery/Install Checklist
x Page x xPre-Delivery Guide Page 12
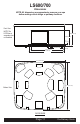
SERENO
Dimensions
NOTE: All dimensions are approximate; measure your spa
before making critical design or pathway decisions.
Front View
Bottom View
DOOR SIDE
Transport
38” (96.5 cm)
39” (99 cm)
1”
(2.5 cm)
27” (68.6 cm)
ELECTRICAL
DRAIN
34” (86.4 cm)
75” (190.5 cm)
75” (190.5 cm)
8” (21 cm)
4”
(10 cm)
7” (18 cm)
48.5” (123 cm)