Pre-Delivery/Install Checklist
Table Of Contents
x Page x x
Page 5 Guide de pré-livraison
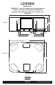
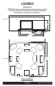
LS100/DX
Dimensions
REMARQUE : toutes les dimensions sont approximatives
; mesurez votre spa avant de prendre des décisions
ayant des implications importantes sur le design ou les
trajectoires.
Vue avant
Vue du fond
CÔTÉ DU
PANNEAU
Banicia
45.5” (116 cm)
47” (119 cm)
1.5”
(3.8 cm)
26” (66 cm)
ELECTRICAL
DRAIN
32” (81.3 cm)
70” (178 cm)
61” (155 cm)
21” (53 cm)
4”
(10 cm)
18” (46 cm)